

- Prix
- 268 274 €
Maison neuve • Acy-en-Multien (60)
- Nom et prix
- Terrain à bâtir () • 268 274 €
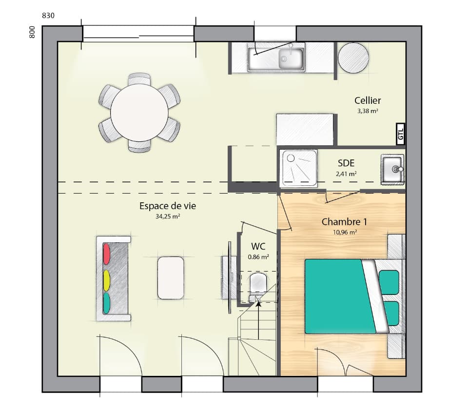
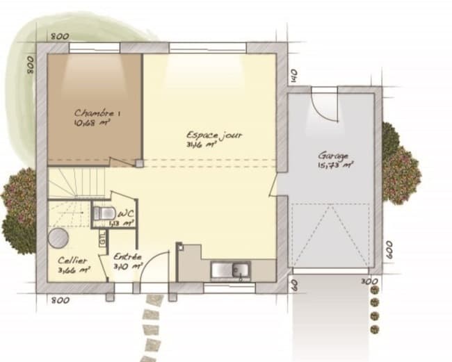
Acy-en-Multien : maison de 7 pièces (102 m²) en vente MAISON 7 PIÈCES NEUVE - PROCHE DE MEAUX À vendre : à côté de la gare de Crouy-sur-Ourcq (Paris à 55 min avec le Transilien P), à Acy-en-Multien (60620), nous sommes heureux de vous présenter cette maison de 7 pièces de 102 m² et de 500 m² de terrain. C'est une maison de 2 niveaux. Elle offre cinq chambres, une cuisine et deux salles de bains. Cette maison est neuve. Une école primaire est implantée dans le quartier. Niveau transports, il y a deux gares (Crouy-sur-Ourcq et Mareuil-sur-Ourcq) à moins de 10 minutes en voiture. Il y a un accès à la nationale N2 à 10 km et Meaux se situe à 17 km. On trouve une bibliothèque dans les environs. Elle est à vendre pour la somme de 268 274 €. Contactez Sébastien DARTEVELLE (tél : 06-24-63-58-60) pour obtenir de plus amples informations sur la propriété, sur les modalités de vente ou sur les démarches à suivre. Maisons Balency Dammartin-en-Goële vous accompagne dans tous vos projets immobiliers et dans toutes vos démarches.










