

- Prix
- 409 500 €
Maison neuve • Brie-Comte-Robert (77)
- Nom et prix
- Terrain à bâtir Brie-Comte-Robert (77170) • 409 500 €
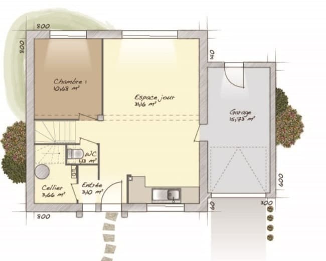
VENTE : maison F6 (98 m²) à Brie-Comte-Robert PROCHE DE PARIS - MAISON 6 PIÈCES NEUVE À vendre : au pied de la station Combs-la-Ville-Quincy du RER D (30 min de Paris), à Brie-Comte-Robert (77170), découvrez cette maison de 6 pièces de 98 m². Son intérieur comporte quatre chambres, une cuisine et une salle de bains. Le terrain de la maison s'étend sur 320 m². Cette maison compte 2 niveaux. Elle est neuve. Cinq établissements scolaires sont implantés à moins de 10 minutes à pied. On trouve une bibliothèque, des boulangeries, des commerces, trois supermarchés, trois épiceries et une boucherie-charcuterie dans les environs. Elle est proposée à l'achat pour 409 500 €. N'hésitez pas à prendre contact avec notre agence (Krizia FERNE : 07-83-36-28-46) pour obtenir de plus amples informations sur cette propriété, sur les démarches à suivre ou sur les modalités de vente.











