

- Prix
- 445 500 €
Maison neuve • Eaubonne (95)
- Nom et prix
- Terrain à bâtir Eaubonne (95600) • 445 500 €
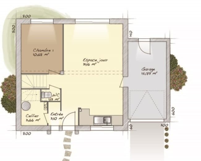
VENTE d'une maison F6 (98 m²) à Eaubonne MAISON 6 PIÈCES NEUVE À vendre : au pied de la gare d'Ermont Halte (Paris à 20 min avec le Transilien H), notre agence Maisons Balency Dammartin-en-Goële est heureuse de vous présenter cette maison de 6 pièces de 98 m² à Eaubonne (95600). C'est une maison de 2 niveaux. Elle propose quatre chambres, une cuisine et une salle de bains. La maison est neuve. Le terrain de la propriété s'étend sur 295 m². Il y a des écoles de tous types (de la maternelle au lycée) à moins de 10 minutes à pied, tout comme deux crèches. Côté transports, on trouve deux lignes de RER (C et D) ainsi que 50 gares à moins de 10 minutes en voiture. Il y a un tennis, des commerces, des boulangeries, deux supermarchés, deux bureaux de poste et des épiceries à quelques minutes du logement. Enfin, le marché Centre-Ville anime les environs. Elle est à vendre pour la somme de 445 500 €. Contactez notre agence (DARTEVELLE Sébastien : 06-24-63-58-60) pour obtenir de plus amples renseignements sur cette maison, sur les modalités de vente ou sur les démarches à suivre. Maisons Balency Dammartin-en-Goële est là pour vous accompagner dans tous vos projets immobiliers.












