
Maison neuve • Longpont-sur-Orge (91)
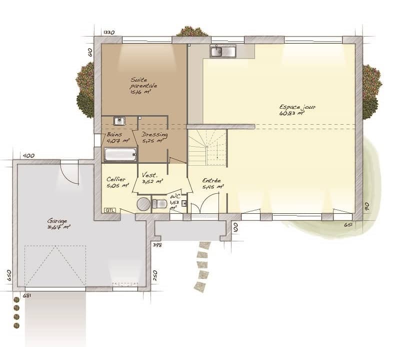
Longpont-sur-Orge : maison de 7 pièces (104 m²) en vente MAISON 7 PIÈCES NEUVE À vendre : à deux pas du RER C (station Saint-Michel-sur-Orge, 20 min de Paris), nous vous proposons cette maison de 7 pièces de 104 m² à Longpont-sur-Orge (91310). Elle dispose de six chambres, d'une cuisine et de deux salles de bains. Le terrain du bien s'étend sur 248 m². Cette maison compte 2 niveaux. Elle est neuve. On trouve l'École Maternelle Lormoy et l'École Élémentaire Lormoy à moins de 10 minutes à pied et deux structures d'accueil pour la petite enfance. Niveau transports en commun, il y a les lignes de RER C, D et B ainsi que 20 gares à moins de 10 minutes en voiture. Il y a un tennis, une boulangerie, quatre commerces, un supermarché et deux épiceries à proximité de la maison. Son prix de vente est de 396 900 €. Contactez Anne DELOHEN (tél : 06-30-93-26-67) pour plus de renseignements sur la maison ou sur les démarches à suivre.
Proposé par Maisons FRANCE CONFORT - Béziers










