

- Prix
- 710 000 €
Maison neuve • Fontenay-sous-Bois (94)
- Nom et prix
- Terrain à bâtir Fontenay-sous-Bois (94120) • 710 000 €
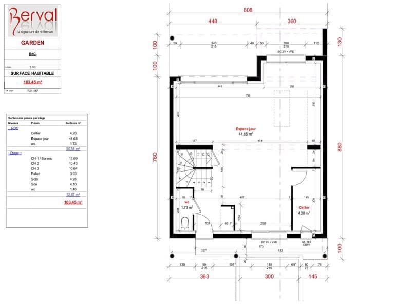
Conçue pour les amateurs de jardins, son design fait la part belle aux espaces extérieurs -balcon, terrasse - accessibles par de vastes baies vitrées. Le bois utilisé en parement sur la façade ou pour la pergola apporte une touche très « nature » Au rez-de-chaussée l'entrée dessert une pièce de vie d'environ 51 m² composée d'un séjour avec une cuisine ouverte et un cellier attenant, ainsi qu'un WC indépendant. Cet espace ouvert donne directement accès au jardin grâce à de larges baies vitrées. L'étage dédié à l'espace nuit est idéal pour la famille. Il se compose d'une suite parentale avec sa salle d'eau et son coin bureau, ainsi qu'une terrasse qui apporte de la lumière naturelle à la chambre. L'étage dessert également deux belles chambres, une salle de bain et un WC indépendant. Vous serez séduits par les nombreux atouts de ce modèle conçu pour s'adapter à un environnement urbain contraint - petite parcelle - et optimiser chaque espace de vie. Quartier pavillonnaire, vue dégagée, RER A Fontenay-sous -Bois ou Val de Fontenay, 1km de la mairie. Demandez plus de renseignements auprès de votre conseiller au 06.41.56.29.99 Chez Maisons Berval, nous proposons des constructions sur mesure, de standing, aux dernières normes et NF HQE (Normes françaises haute qualité environnementale)












