

- Prix
- 550 900 €
Maison neuve • Marolles-en-Brie (94)
- Nom et prix
- Terrain à bâtir Marolles-en-Brie (94440) • 550 900 €
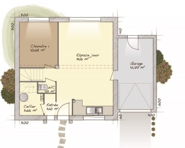
Maison F6 (98 m²) à vendre à Marolles-en-Brie PROCHE DE PARIS - MAISON 6 PIÈCES NEUVE À deux pas du RER A (station Boissy-Saint-Léger, 20 min de Paris), nous vous présentons à vendre à Marolles-en-Brie (94440), cette maison de 6 pièces de 98 m² et de 550 m² de terrain. Il s'agit d'une maison de 2 niveaux. Elle propose quatre chambres, une cuisine et une salle de bains. Cette maison est neuve. Il y a l'École Maternelle les Buissons, l'École Élémentaire les Buissons et l'École Primaire la Forêt à moins de 10 minutes à pied. Côté transports, on trouve les lignes de RER A, D, C et E ainsi que 14 gares à moins de 10 minutes en voiture. On trouve une bibliothèque, un tennis, quatre commerces, une boulangerie, un supermarché, un bureau de poste et deux boucheries-charcuteries dans les environs. Il est à vendre pour la somme de 550 900 €. Contactez Krizia FERNE (tél : 07-83-36-28-46) pour toute information sur cette maison, sur les modalités de vente ou sur les démarches à suivre.











