

- Prix
- 649 455 €
Maison neuve • Sartrouville (78)
- Nom et prix
- Terrain à bâtir () • 649 455 €
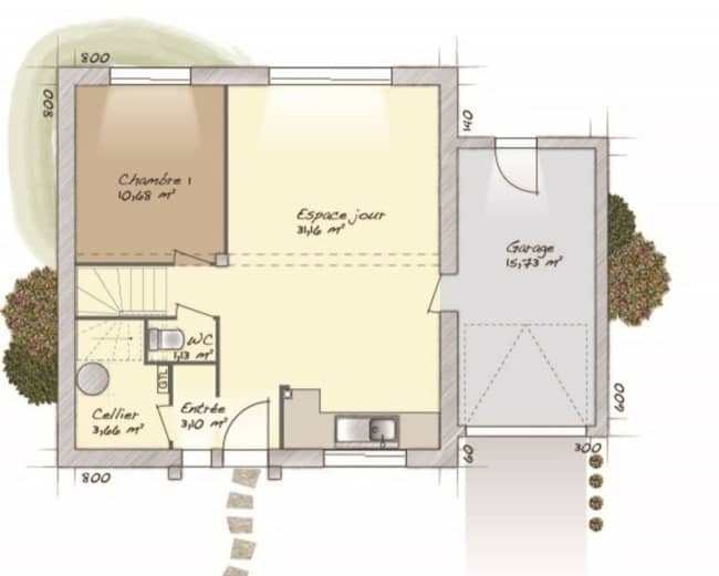
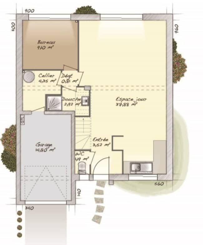
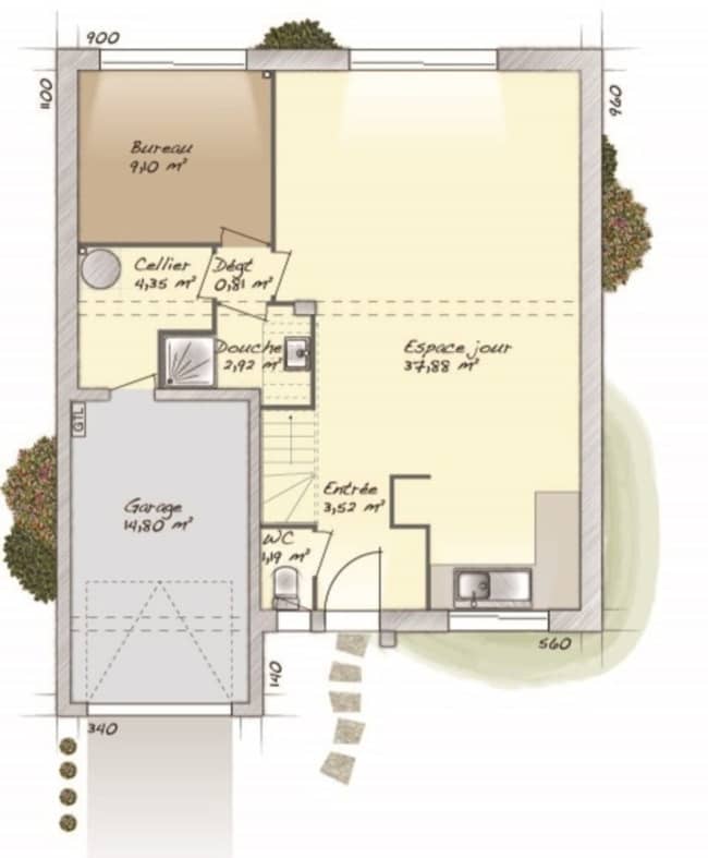
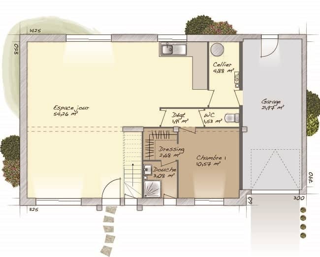
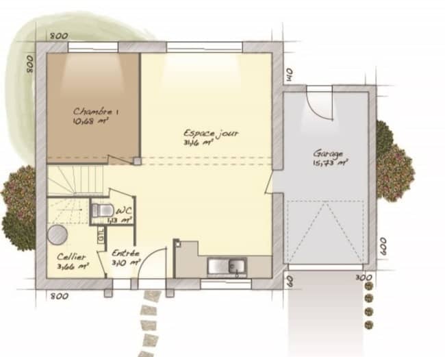
A 10 min à pied de la gare RER A dans l'une des plus belle rue de SARTROUVILLE. Projet de construction d'une maison de 120 m² sur un terrain de 369 m² environ. Cette future maison en R+1+Mansart est composé au RDC d'une pièce à vivre de plus de 43 m², d'un WC et d'un garage attenant de plus de 15 m². A l'étage 3 chambres et une salle de bain. Combles à la mansart aménagé en 2 chambres et salle de bain. Projet à 649455 €, ce prix comprends les frais de notaire, la viabilité publique ainsi que les frais de terrassement et de démolition. Il ne comprends pas les finitions intérieurs (enduit / peinture, sols et appareils sanitaires). Plans et chiffrage disponible à mon agence, contactez ROSARIO au 06/12/60/31/24.











