

- Prix
- 417 774 €
Maison neuve • Villiers-sur-Marne (94)
- Nom et prix
- Terrain à bâtir () • 417 774 €
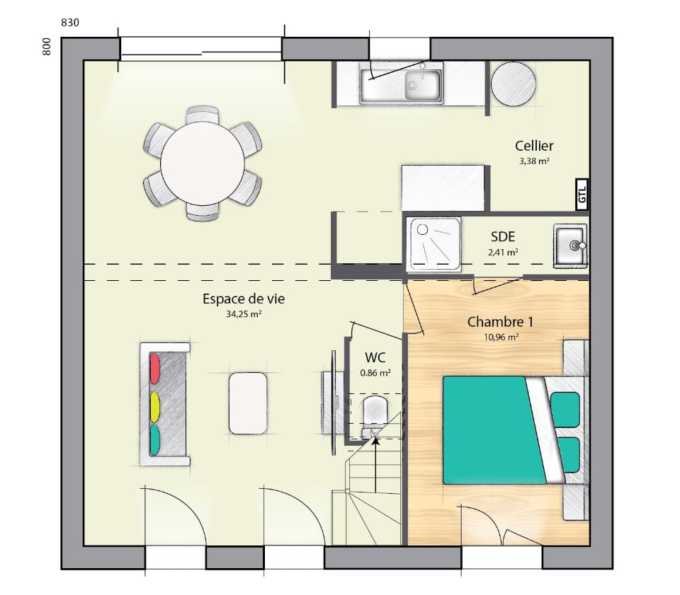
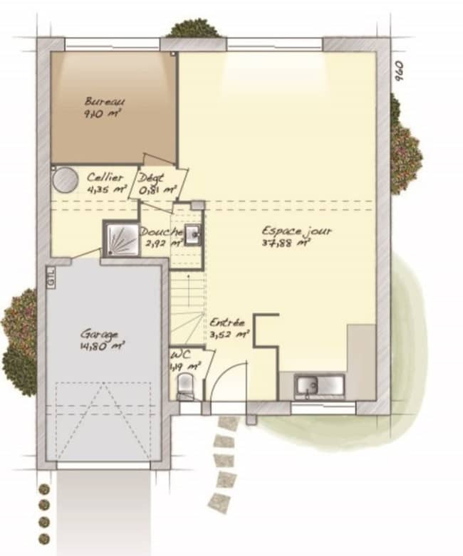
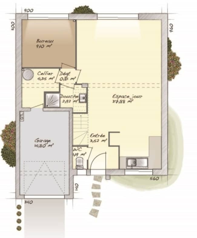
Maison de 7 pièces (102 m²) en vente à Villiers-sur-Marne MAISON 7 PIÈCES NEUVE Nous sommes heureux de vous proposer cette maison de 7 pièces de 102 m² en vente à Villiers-sur-Marne (94350). C'est une maison de 2 niveaux. Son intérieur compte cinq chambres, une cuisine et deux salles de bains. La maison est neuve. Le terrain de la propriété s'étend sur 300 m². Il y a plusieurs écoles (maternelle, élémentaire, primaire et collège) à moins de 10 minutes à pied, tout comme quatre crèches. Niveau transports en commun, on trouve la station de RER Villiers-Sur-Marne-Plessis-Trévise (ligne E) ainsi que la gare Villiers-sur-Marne-Le Plessis-Trévise à proximité. Il y a une bibliothèque, deux tennis, un bassin de natation, des commerces, des boulangeries, trois supermarchés, des supérettes et des boucheries-charcuteries dans les environs. Enfin, le marché Place de l'église anime le quartier. Elle est proposée à l'achat pour 417 774 €. N'hésitez pas à prendre contact avec notre agence (DARTEVELLE Sébastien : 06-24-63-58-60) pour plus d'informations sur la maison. Maisons Balency Dammartin-en-Goële vous accompagne à toutes les étapes de votre projet et dans tous vos projets immobiliers.












