

- Prix
- 366 500 €
Maison neuve • Coubron (93)
- Nom et prix
- Terrain à bâtir () • 366 500 €
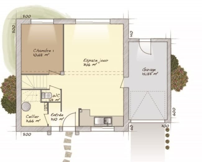
Maison T6 (98 m²) en vente à Coubron PROCHE DE PARIS - MAISON 6 PIÈCES NEUVE À vendre : à proximité de la station Vert Galant du RER B (25 min de Paris), Maisons Balency Dammartin-en-Goële vous présente cette maison de 6 pièces de 98 m² et de 300 m² de terrain à Coubron (93470). Cette maison possède 2 niveaux. Elle compte quatre chambres, une cuisine et une salle de bains. Cette maison est neuve. Des écoles maternelles et élémentaires se trouvent à moins de 10 minutes à pied. Niveau transports, il y a les lignes de RER B, E et A ainsi que 31 gares à moins de 10 minutes en voiture. On trouve une bibliothèque, un tennis, des commerces, une boulangerie, un supermarché, une épicerie et un bureau de poste dans les environs. Elle est à vendre pour la somme de 366 500 €. Prenez contact avec notre agence (DARTEVELLE Sébastien : 06-24-63-58-60) pour plus de renseignements sur cette maison. Concrétisez vos projets immobiliers avec Maisons Balency Dammartin-en-Goële.












