

- Prix
- 434 000 €
Maison neuve • Villiers-sur-Marne (94)
- Nom et prix
- Terrain à bâtir () • 434 000 €
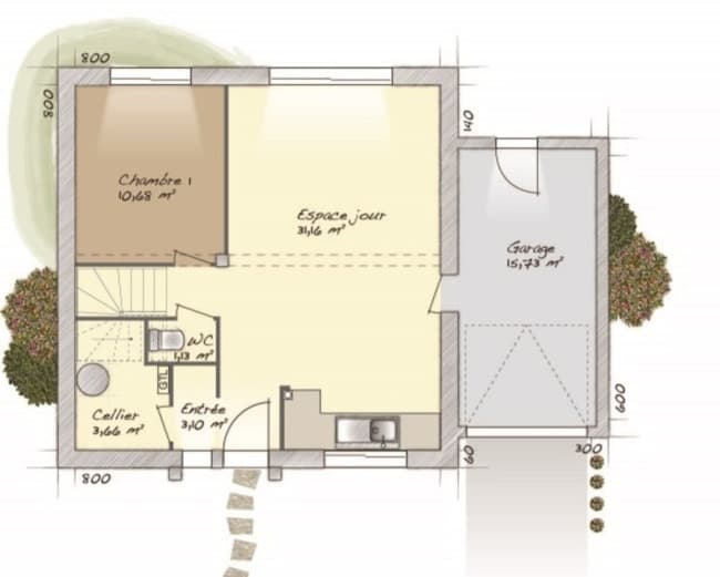
Maison de 6 pièces (98 m²) en vente à Villiers-sur-Marne MAISON 6 PIÈCES NEUVE Maisons Balency Dammartin-en-Goële vous propose cette maison de 6 pièces de 98 m² à Villiers-sur-Marne (94350). Cette maison possède 2 niveaux. Elle propose quatre chambres, une cuisine et une salle de bains. La maison est neuve. Le terrain de la propriété est de 300 m². Plusieurs établissements scolaires (maternelle, élémentaire, primaire et collège) se trouvent à moins de 10 minutes à pied, tout comme quatre crèches. Niveau transports, il y a la station de RER Villiers-Sur-Marne-Plessis-Trévise (ligne E) ainsi que la gare Villiers-sur-Marne-Le Plessis-Trévise dans les alentours. On trouve une bibliothèque, deux tennis, un bassin de natation, des commerces, des boulangeries, trois supermarchés, des boucheries-charcuteries et deux bureaux de poste à proximité de la maison. Enfin, le marché Place de l'église anime le quartier. Elle est proposée à l'achat pour 434 000 €. Contactez Sébastien DARTEVELLE (tél : 06-24-63-58-60) pour toute question sur cette maison.











