

- Prix
- 379 000 €
Maison neuve • Conflans-Sainte-Honorine (78)
- Nom et prix
- Terrain à bâtir Conflans-Sainte-Honorine (78700) • 379 000 €
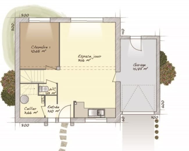
VENTE : maison T6 (98 m²) à Conflans-Sainte-Honorine IDÉALEMENT SITUÉE - MAISON 6 PIÈCES NEUVE En vente : proche du Transilien J (20 min de Paris), découvrez cette maison de 6 pièces de 98 m² idéalement située dans Conflans-Sainte-Honorine (78700). Cette maison comporte 2 niveaux. Elle dispose de quatre chambres, d'une cuisine et d'une salle de bains. Cette maison est neuve. Le terrain du bien est de 200 m². La maison se situe dans un secteur attractif. Plusieurs établissements scolaires (maternelle, élémentaire et lycée) se trouvent à moins de 10 minutes à pied, tout comme deux structures d'accueil pour la petite enfance. Niveau transports en commun, il y a la gare Conflans-Sainte-Honorine à quelques pas du bien. On trouve un tennis, une bibliothèque, des commerces, des boulangeries, un supermarché, des épiceries et des boucheries-charcuteries dans les environs. Elle est proposée à l'achat pour 379 000 €. N'hésitez pas à prendre contact avec notre agence (TALAMONI Christophe : 06-49-55-08-27) pour toute question sur la maison ou sur les modalités de vente.











