

- Prix
- 662 600 €
Maison neuve • Saint-Leu-la-Forêt (95)
- Nom et prix
- Terrain à bâtir Saint-Leu-la-Forêt (95320) • 662 600 €
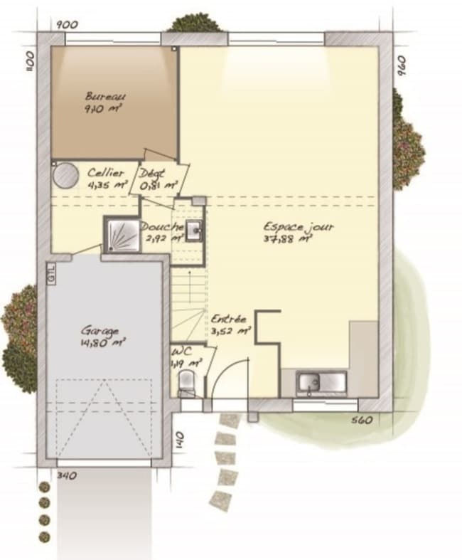
VENTE d'une maison de 7 pièces (160 m²) à Saint-Leu-la-Forêt MAISON 7 PIÈCES NEUVE - PROCHE DE PARIS À quelques minutes de la gare (Paris à 25 min par le Transilien H), nous vous proposons à vendre à Saint-Leu-la-Forêt (95320), cette maison de 7 pièces de 160 m² et de 500 m² de terrain. Son intérieur dispose de quatre chambres, d'une cuisine et de deux salles de bains. Il s'agit d'une maison de 2 niveaux. Elle est neuve. Il y a des écoles maternelles et élémentaires à moins de 10 minutes à pied et une crèche. Niveau transports, on trouve la gare Saint-Leu-la-Forêt à proximité. Il y a un tennis, des commerces, des boulangeries, quatre boucheries-charcuteries, une supérette et un bureau de poste à quelques minutes. Enfin, le marché Place de la Mairie anime les environs. Elle est proposée à l'achat pour 662 600 €. Contactez Denis DUCOS (tél : 06-80-06-50-40) pour toute question sur la propriété. Maisons Balency Moisselles vous accompagne dans toutes vos démarches et à toutes les étapes de l'achat.












