

- Prix
- 301 100 €
Maison neuve • Marines (95)
- Nom et prix
- Terrain à bâtir Marines (95640) • 301 100 €
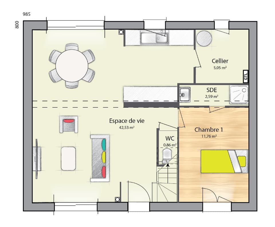
Maison T6 (89 m²) en vente à Marines IDÉALEMENT SITUÉE A 20MN DE CERGY PONTOISE - MAISON 6 PIÈCES NEUVE Dans le cadre préservé du Parc Naturel Régional du Vexin, votre agence Maisons Evolution Cormeilles-en-Parisis est ravie de vous présenter, cette maison de 6 pièces de 89 m². Il s'agit d'une maison de 2 niveaux. Elle offre quatre chambres, une cuisine et une salle de bains. La maison est neuve. Le terrain du bien s'étend sur 467 m². A Marines, vous trouverez l'École Élémentaire Paul Cézanne, l'École Maternelle les Murgers et le Collège des Hautiers à moins de 10 minutes à pied. Niveau transports, on trouve plusieurs gares à moins de 10 minutes en voiture (gare de Chars reliant Paris en 50min ligne J). Il y a une bibliothèque, des commerces, deux boulangeries, un supermarché, une boucherie-charcuterie et deux épiceries dans les environs. Elle est proposée à l'achat pour 301 100 €. Contactez notre constructeur (Caroline BETHERY : O6 81 87 74 31) pour tout renseignement sur la maison ou sur les modalités de vente. Concrétisez vos projets immobiliers avec Maisons Evolution Cormeilles-en-Parisis.











