

- Prix
- 294 500 €
Maison neuve • Péronnas (19)
- Nom et prix
- Terrain à bâtir Péronnas (01960) • 294 500 €
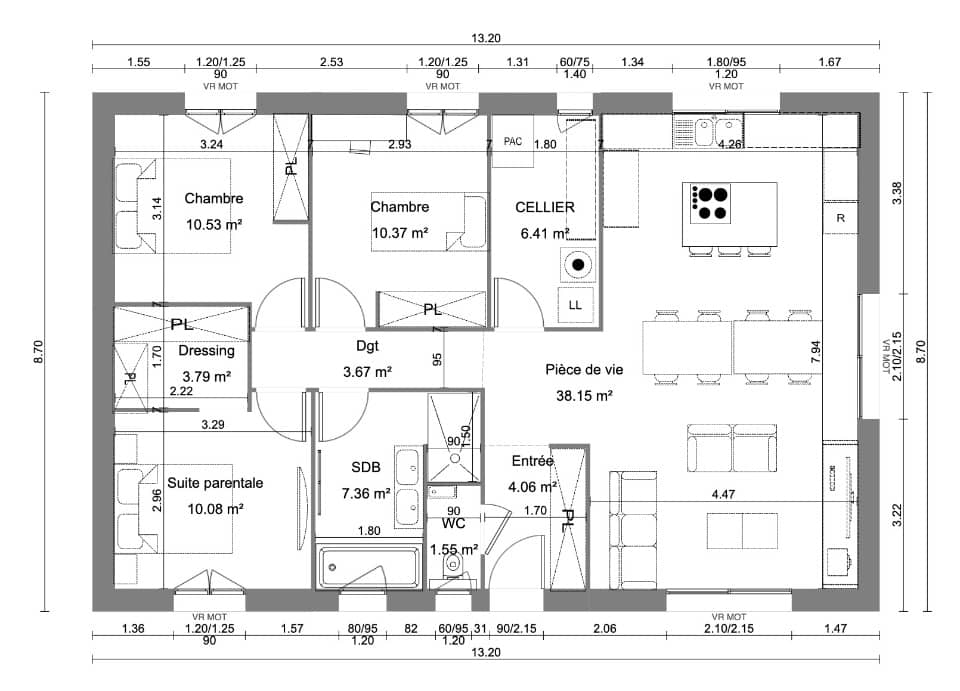
Maison F5 (100 m²) à vendre à Péronnas PROCHE DE BOURG-EN-BRESSE - MAISON 5 PIÈCES NEUVE À deux pas de Bourg-en-Bresse, à vendre à Péronnas (01960), votre agence Maisons France Confort Bourg-en-Bresse est ravie de vous présenter cette maison de 5 pièces de plain-pied de 100 m² et de 425 m² de terrain. Conçue de plain-pied, elle propose quatre chambres, une cuisine et une salle de bains. La maison est neuve. L'École Maternelle Janine Chabin et l'École Élémentaire les Erables sont implantées à moins de 10 minutes à pied. Niveau transports en commun, on trouve quatre gares à moins de 10 minutes en voiture. Les autoroutes A40 et A39 sont accessibles à moins de 10 km. Il y a un tennis, deux boulangeries, des commerces, deux supermarchés, une boucherie-charcuterie et un bureau de poste à proximité. Elle est à vendre pour la somme de 294 500 €. Contactez notre agence (GABRILLARGUES Sébastien : 06-81-77-73-67) pour toute question sur cette maison, sur les démarches à suivre ou sur les modalités de vente.











