

- Prix
- 232 000 €
Maison neuve • Péronnas (19)
- Nom et prix
- Terrain à bâtir Péronnas (01960) • 232 000 €
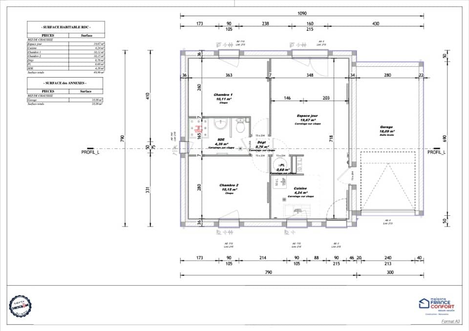
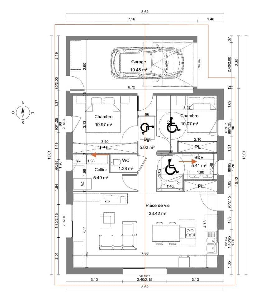
VENTE d'une maison de 3 pièces (75 m²) à Péronnas MAISON 3 PIÈCES NEUVE - PROCHE DE BOURG-EN-BRESSE À vendre à 4 km de Bourg-en-Bresse, nous sommes heureux de vous présenter à Péronnas (01960), cette maison de 3 pièces de plain-pied de 75 m². Conçue de plain-pied, elle est composée de deux chambres, d'une cuisine et d'une salle de bains. Le terrain de cette maison est de 389 m². La maison est neuve. L'École Maternelle Janine Chabin et l'École Élémentaire les Erables sont implantées à moins de 10 minutes à pied. Côté transports en commun, il y a quatre gares à moins de 10 minutes en voiture. Les autoroutes A40 et A39 sont accessibles à moins de 10 km. On trouve un tennis, deux boulangeries, des commerces, deux supermarchés, un bureau de poste et une boucherie-charcuterie à quelques minutes du logement. Son prix de vente est de 232 000 €. Contactez notre agence (GABRILLARGUES Sébastien : 06-81-77-73-67) pour plus de renseignements sur la maison ou sur les démarches à suivre. Donnez vie à vos projets immobiliers avec Maisons France Confort Bourg-en-Bresse.










