

- Prix
- 400 000 €
Maison neuve • Groslay (95)
- Nom et prix
- Terrain à bâtir Groslay (95410) • 400 000 €
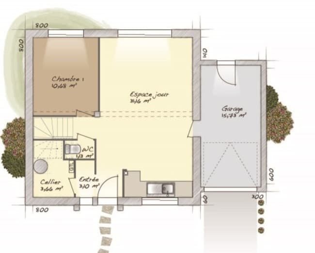
Maison F6 (98 m²) à vendre à Groslay MAISON 6 PIÈCES NEUVE - PROCHE DE PARIS En vente : à deux pas de la gare, nous sommes ravis de vous proposer cette maison de 6 pièces de 98 m² à Groslay (95410). Son intérieur est composé de quatre chambres, d'une cuisine et d'une salle de bains. Le terrain du bien s'étend sur 238 m². Cette maison comporte 2 niveaux. Elle est neuve. L'École Primaire les Glaisières, l'École Maternelle Marie Laurencin et l'École Élémentaire Alphonse Daudet sont implantées à moins de 10 minutes à pied. Niveau transports, on trouve la gare Groslay à proximité, plaçant Paris à 15 min de cette maison en transilien. Il y a une bibliothèque, un tennis, des commerces, quatre boulangeries, un supermarché, une boucherie-charcuterie et un bureau de poste à quelques minutes. Elle est proposée à l'achat pour 400 000 €. Contactez notre agence (MONTANIER Aurelien : 06-24-66-88-34) pour plus d'informations sur la maison, sur les démarches à suivre ou sur les modalités de vente.











