

- Prix
- 439 000 €
Maison neuve • Sannois (95)
- Nom et prix
- Terrain à bâtir Sannois (95110) • 439 000 €
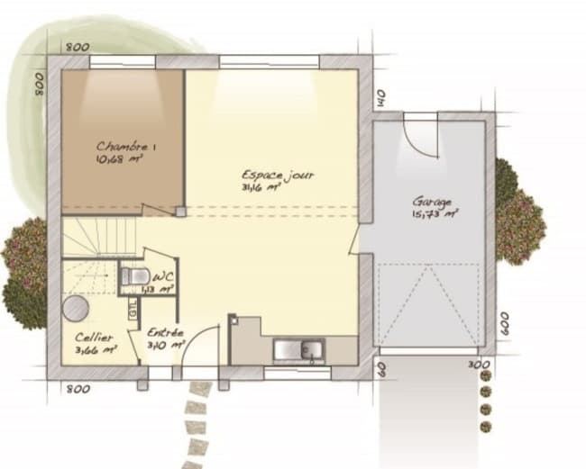
Maison F6 (98 m²) en vente à Sannois MAISON 6 PIÈCES NEUVE Proche de la gare (Paris à 20 min avec le Transilien J), à vendre à Sannois (95110), Maisons Balency Saint-Maur-des-Fossés vous présente cette maison de 6 pièces de 98 m² et de 403 m² de terrain. Son intérieur dispose de quatre chambres, d'une cuisine et d'une salle de bains. Cette maison possède 2 niveaux. Elle est neuve. Il y a des écoles de tous niveaux (de la maternelle au lycée) à moins de 10 minutes à pied, tout comme quatre crèches. Niveau transports en commun, on trouve la gare Sannois dans un rayon de 1 km. Il y a une bibliothèque, des boulangeries, des commerces, deux supermarchés, un bureau de poste et trois boucheries-charcuteries à proximité du bien. Elle est proposée à l'achat pour 439 000 €. Contactez notre agence (Aurelien MONTANIER : 06-24-66-88-34) pour tout renseignement sur la maison.