

- Prix
- 331 200 €
Maison neuve • Marines (95)
- Nom et prix
- Terrain à bâtir Marines (95640) • 331 200 €
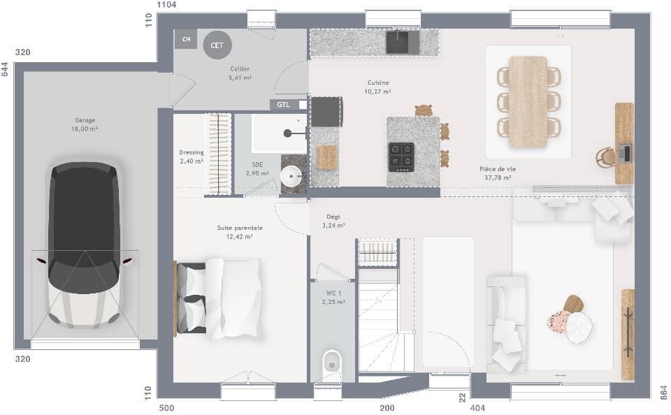
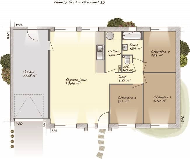
VENTE d'une maison F4 (90 m²) à Marines MAISON 4 PIÈCES NEUVE - A 20MIN DE CERGY PONTOISE À côté du Transilien J (gare de Santeuil-Le Perchay, 55 min de Paris), en vente à Marines (95640), nous vous présentons cette maison de 4 pièces de plain-pied de 90 m². Son intérieur comporte trois chambres, une cuisine et une salle de bains. Cette maison est neuve. Le terrain de la propriété est de 516 m². Il y a l'École Élémentaire Paul Cézanne, l'École Maternelle les Murgers et le Collège des Hautiers à moins de 10 minutes à pied. Niveau transports en commun, on trouve six gares à moins de 10 minutes en voiture. Il y a une bibliothèque, des commerces, deux boulangeries, un supermarché, une boucherie-charcuterie et un bureau de poste à quelques minutes du logement. Son prix de vente est de 331 200 €. Contactez notre agence (BETHERY Caroline : O6 81 87 74 31) pour toute information sur la maison, sur les démarches à suivre ou sur les modalités de vente. Maisons Evolution Cormeilles-en-Parisis est là pour vous accompagner dans tous vos projets immobiliers.












