

- Prix
- 284 000 €
Maison neuve • Loupian (34)
- Nom et prix
- Terrain à bâtir () • 284 000 €
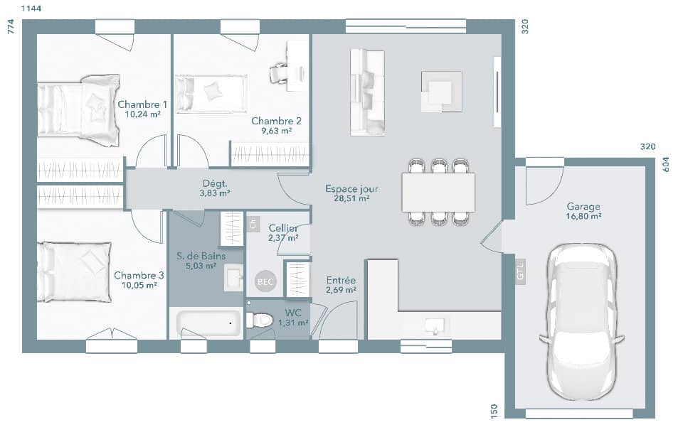
Projet de construction : maison de 3 pièces (75 m²) à Loupian PROCHE DE MONTPELLIER - MAISON 3 PIÈCES À 13 km de la mer Méditerranée et à deux pas de Montpellier, Maisons France Confort Béziers vous propose à vendre à Loupian (34140), cette maison de 3 pièces de plain-pied de 75 m². Son intérieur offre deux chambres, une cuisine, un cellier, deux salles de bains et un garage. Le terrain de la propriété est de 303 m². L'École Primaire le Chêne Vert et le Collège Olympe de Gouges se trouvent à moins de 10 minutes à pied. Côté transports, il y a la gare Sète à moins de 10 minutes en voiture. L'autoroute A9 est accessible à 7 km. On trouve un tennis, une bibliothèque, trois boulangeries, un commerce, une poissonnerie, un bureau de poste et une épicerie à quelques minutes à peine. Son prix de vente est de 284 000 €. Pour plus d'information contacter (Anthony BALLESTER : 06.27.21.51.55) Maisons France Confort Béziers pour échanger sur votre projet et réaliser une étude gratuite. Tous nos ouvrages sont réalisés sur-mesure en fonction de vos attentes et de nos échanges avec vous ainsi que dans le respect de la règlementation RE 2020. Ce projet comporte les garanties suivantes: .Contrat de construction CCMI .Dommage/Ouvrage .RC Garantie décennale .Etude de sol G2 .Prix ferme et définitif .Garantie financière Pour votre tranquillité nous nous occupons de toutes les formalités administratives.












