

- Prix
- 228 000 €
Maison neuve • Sacquenville (27)
- Nom et prix
- Terrain à bâtir Sacquenville (27930) • 228 000 €
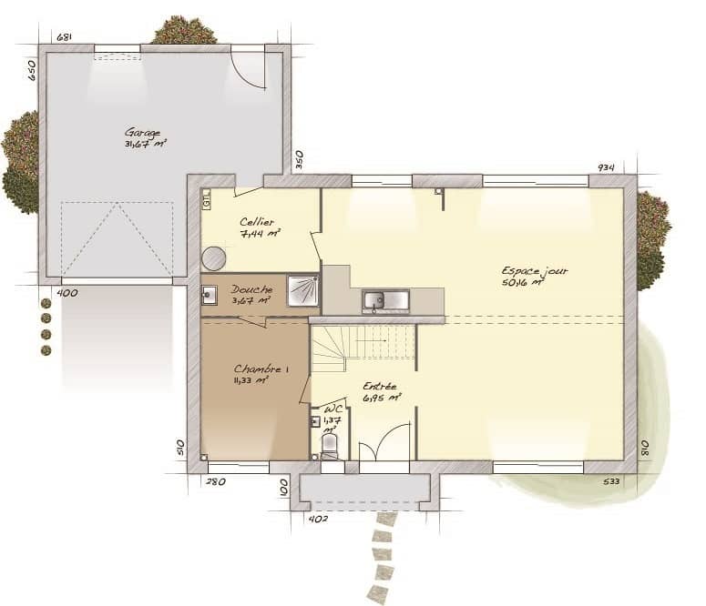
VENTE : maison de 4 pièces (90 m²) à Sacquenville IDÉALEMENT SITUÉE - MAISON 4 PIÈCES NEUVE À vendre : située à quelques kilomètres d'Évreux, idéalement située dans Sacquenville (27930), nous vous présentons cette maison de 4 pièces de plain-pied de 90 m² et de 825 m² de terrain. Elle comporte trois chambres, une cuisine et une salle de bains. La maison est neuve. Cette maison se situe dans un secteur convoité. On y trouve une école primaire. Côté transports en commun, on trouve la gare Évreux Normandie à moins de 10 minutes en voiture. Les nationales N13 et N154 sont accessibles à moins de 8 km. Il y a deux épiceries à proximité. Elle est proposée à l'achat pour 228 000 €. Contactez Aurélien LEOVANT (tél : 02-35-80-66-66) pour toute question sur la maison. Concrétisez vos projets immobiliers avec Maisons Balency Boos.










