logo de nos-terrains.com

2784 maisons neuves à vendre à Puiseux en france (95)

Résultats de recherche

Maison neuve - Projet de construction d'une maison 102 m² avec terrain à BAILLET-EN-FRANCE (95) à BAILLET-EN-FRANCE (95), prix 156 819 €
156 819 €
102 m²
1537 €/m²

Maison neuveBAILLET-EN-FRANCE (95)

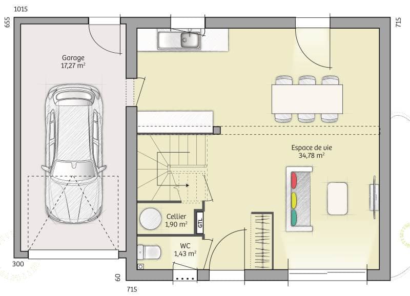
A BAILLET-EN-FRANCE sur un terrain de 240 m², MAISONS SESAME vous propose de réaliser cette maison neuve d'une surface de 102 m² habitables avec 4 chambres. Le modèle ATRIA 105 est une maison à étage de 102 m², offrant un agencement pratique et fonctionnel pour une vie familiale agréable. Le rez-de-chaussée comprend une chambre, qui peut également être aménagée en bureau pour répondre aux besoins du télétravail. Ce niveau dispose également d'un cellier pratique pour le stockage, ainsi qu'une grande pièce de vie lumineuse ouverte sur la cuisine. Une salle de bains et un WC séparé complètent ce niveau. À l'étage, vous trouverez 3 chambres,et une salle de bains pour un confort optimal. Le modèle ATRIA 105 combine ainsi praticité, confort et espace, idéal pour une famille moderne. MAISONS SÉSAME vous propose les prestations suivantes : - Plans des maisons modulables et adaptables selon vos besoins et les spécificités de votre terrain - Large choix de systèmes de chauffage performants et économes en énergie - Sélection de matériaux de qualité garantissant confort et durabilité - Accompagnement sur-mesure pour la recherche et l’acquisition de votre terrain - Construction conforme à la réglementation en vigueur et à la norme RE2020 - Maisons certifiées NF HABITAT, gage de qualité, de performance et de confort Informations du terrain : calme et proche de toutes les comoditées. Demandez une étude gratuite et personnalisée de votre projet de construction ! Étude gratuite de votre projet de construction ! De nombreux terrains disponibles dans votre secteur. Informations légales : Maisons Sésame, constructeur de maisons individuelles, propose une sélection de terrains en collaboration avec ses partenaires fonciers, sous réserve de disponibilité. Il n’agit pas en tant que mandataire pour la vente de ces terrains. Nos maisons, certifiées NF Habitat et conformes à la réglementation thermique en vigueur, vous garantissent un habitat durable et économe en énergie. Découvrez un large choix de modèles adaptés aux besoins de toute la famille. Informations tarifaires : Les prix indiqués sont donnés à titre indicatif et n’incluent pas les frais annexes (frais de notaire, raccordements, etc.). Les visuels et prix présentés sont non contractuels. Pour plus de détails, consultez nos conditions en agence. N° ORIAS IOBSP 13007108 – RCS Versailles 388 867 426. Les informations sur les risques auxquels ce bien est exposé sont disponibles sur le site Géorisques : www.georisques.gouv.fr Cette annonce a été créée et diffusée avec le logiciel VITAHOME. Contactez Christophe RIBEIRO au 06 58 91 51 35 ou au 01 39 83 27 47 (Maisons Sésame - Agence d'Eaubonne).

Proposé par MAISONS SÉSAME

Maison neuve - Projet de construction d'une maison 101 m² avec terrain à BAILLET-EN-FRANCE (95) à RUE DE LA MAIRIE (95), prix 171 653 €
171 653 €
101 m²
1700 €/m²

Maison neuveRUE DE LA MAIRIE (95)

A BAILLET-EN-FRANCE sur un terrain de 452 m², MAISONS SESAME vous propose de réaliser cette maison neuve d'une surface de 101 m² habitables avec 4 chambres. Le modèle JASPE est une maison familiale de 101 m², avec un comble réhaussé pour offrir un espace de vie agréable et bien réparti. Ce modèle comprend six pièces, dont quatre chambres, et est conçu pour maximiser le confort et la fonctionnalité, tout en apportant un style moderne et pratique. Très fonctionnelle, cette maison propose de grands espaces de vie communs. Le rez-de-chaussée abrite un grand séjour en L, qui s'ouvre sur une cuisine soit ouverte, soit fermée selon vos préférences. Cette disposition crée un espace de vie lumineux et accueillant, idéal pour les moments en famille. À l’étage, trois chambres sont aménagées sous les toits, offrant un cadre cosy et intime. Ces chambres partagent une salle de bains, desservie par une mezzanine située en haut des escaliers. La quatrième chambre, quant à elle, est située au rez-de-chaussée et bénéficie d’une salle d’eau privative, offrant ainsi plus d’intimité et de praticité. MAISONS SÉSAME vous propose les prestations suivantes : - Plans des maisons modulables et adaptables selon vos besoins et les spécificités de votre terrain - Large choix de systèmes de chauffage performants et économes en énergie - Sélection de matériaux de qualité garantissant confort et durabilité - Accompagnement sur-mesure pour la recherche et l’acquisition de votre terrain - Construction conforme à la réglementation en vigueur et à la norme RE2020 - Maisons certifiées NF HABITAT, gage de qualité, de performance et de confort Demandez une étude gratuite et personnalisée de votre projet de construction ! Étude gratuite de votre projet de construction ! De nombreux terrains disponibles dans votre secteur. Informations légales : Maisons Sésame, constructeur de maisons individuelles, propose une sélection de terrains en collaboration avec ses partenaires fonciers, sous réserve de disponibilité. Il n’agit pas en tant que mandataire pour la vente de ces terrains. Nos maisons, certifiées NF Habitat et conformes à la réglementation thermique en vigueur, vous garantissent un habitat durable et économe en énergie. Découvrez un large choix de modèles adaptés aux besoins de toute la famille. Informations tarifaires : Les prix indiqués sont donnés à titre indicatif et n’incluent pas les frais annexes (frais de notaire, raccordements, etc.). Les visuels et prix présentés sont non contractuels. Pour plus de détails, consultez nos conditions en agence. N° ORIAS IOBSP 13007108 – RCS Versailles 388 867 426. Les informations sur les risques auxquels ce bien est exposé sont disponibles sur le site Géorisques : www.georisques.gouv.fr Cette annonce a été créée et diffusée avec le logiciel VITAHOME. Contactez Samir MIHOUB au 07 86 53 75 91 ou au 01 82 20 01 50 (Maisons Sésame - Agence de Coignières).

Proposé par MAISONS SÉSAME

Maison neuve - Projet de construction d'une maison 148 m² avec terrain à BAILLET-EN-FRANCE (95) à BAILLET-EN-FRANCE (95), prix 197 852 €
197 852 €
148 m²
1337 €/m²

Maison neuveBAILLET-EN-FRANCE (95)

A BAILLET-EN-FRANCE sur un terrain de 960 m², MAISONS SESAME vous propose de réaliser cette maison neuve d'une surface de 148 m² habitables avec 5 chambres. Le modèle PYROPE 150 2 pans est une maison de 148 m², offrant des volumes généreux et un agencement optimisé pour un confort maximal. Son design élégant est accentué par un fronton et un porche rentrant, lui conférant un style à la fois raffiné et accueillant. Au rez-de-chaussée, vous trouverez une chambre pouvant parfaitement servir pour télétravailler, un cellier pratique pour le rangement, ainsi qu'une entrée spacieuse qui mène à un grand séjour lumineux. Ce niveau comprend également un WC séparé. À l'étage, les quatre chambres, dont une suite parentale avec sa propre salle de douche et un dressing privé, apportent une touche de luxe et d'intimité. Une salle de bains supplémentaire est partagée entre les autres chambres. MAISONS SÉSAME vous propose les prestations suivantes : - Plans des maisons modulables et adaptables selon vos besoins et les spécificités de votre terrain - Large choix de systèmes de chauffage performants et économes en énergie - Sélection de matériaux de qualité garantissant confort et durabilité - Accompagnement sur-mesure pour la recherche et l’acquisition de votre terrain - Construction conforme à la réglementation en vigueur et à la norme RE2020 - Maisons certifiées NF HABITAT, gage de qualité, de performance et de confort Informations du terrain : -Cadre naturel préservé, paisible et verdoyant -Proches commerces, écoles et transports -Rare sur ce secteur très recherché -R+1 possible Demandez une étude gratuite et personnalisée de votre projet de construction ! Étude gratuite de votre projet de construction ! De nombreux terrains disponibles dans votre secteur. Informations légales : Maisons Sésame, constructeur de maisons individuelles, propose une sélection de terrains en collaboration avec ses partenaires fonciers, sous réserve de disponibilité. Il n’agit pas en tant que mandataire pour la vente de ces terrains. Nos maisons, certifiées NF Habitat et conformes à la réglementation thermique en vigueur, vous garantissent un habitat durable et économe en énergie. Découvrez un large choix de modèles adaptés aux besoins de toute la famille. Informations tarifaires : Les prix indiqués sont donnés à titre indicatif et n’incluent pas les frais annexes (frais de notaire, raccordements, etc.). Les visuels et prix présentés sont non contractuels. Pour plus de détails, consultez nos conditions en agence. N° ORIAS IOBSP 13007108 – RCS Versailles 388 867 426. Les informations sur les risques auxquels ce bien est exposé sont disponibles sur le site Géorisques : www.georisques.gouv.fr Cette annonce a été créée et diffusée avec le logiciel VITAHOME. Contactez Jeremy DEBERLES au 06 23 27 99 34 ou au 01 84 29 34 10 (Maisons Sésame - Agence de Baillet en France).

Proposé par MAISONS SÉSAME

Maison neuve - Projet de construction d'une maison 117 m² avec terrain à BAILLET-EN-FRANCE (95) à 62 rue Jean Nicolas (95), prix 178 953 €
178 953 €
117 m²
1530 €/m²

Maison neuve62 rue Jean Nicolas (95)

A BAILLET-EN-FRANCE sur un terrain de 452 m², MAISONS SESAME vous propose de réaliser cette maison neuve d'une surface de 117 m² habitables avec 4 chambres. Le modèle EMERAUDE 120 est une maison familiale de 120 m² de style classique, qui privilégie à la fois le confort et l’optimisation des espaces. L'avancée de la maison, qui vient souligner son architecture élégante, lui confère un caractère distinctif, renforçant ainsi son style cossu. Au rez-de-chaussée, vous trouverez une cuisine ouverte, qui se prolonge sur un grand séjour de 30 m², offrant une belle vue sur le jardin. Un cellier pratique est également présent, ainsi qu'une chambre indépendante, pouvant servir de bureau ou d'espace polyvalent, et un WC séparé. À l’étage, les trois chambres se partagent une salle de bain, et un grand dressing. Le palier spacieux peut être aménagé en bureau ou en boudoir, offrant un espace supplémentaire pour s’adapter aux besoins de la famille. Ce modèle est conçu pour offrir à la fois confort et flexibilité. MAISONS SÉSAME vous propose les prestations suivantes : - Plans des maisons modulables et adaptables selon vos besoins et les spécificités de votre terrain - Large choix de systèmes de chauffage performants et économes en énergie - Sélection de matériaux de qualité garantissant confort et durabilité - Accompagnement sur-mesure pour la recherche et l’acquisition de votre terrain - Construction conforme à la réglementation en vigueur et à la norme RE2020 - Maisons certifiées NF HABITAT, gage de qualité, de performance et de confort Informations du terrain : -Cadre exceptionnel -R+1 possible -Hors ABF -Exposition Sud -Emprise au sol 135 m² maximum Demandez une étude gratuite et personnalisée de votre projet de construction ! Étude gratuite de votre projet de construction ! De nombreux terrains disponibles dans votre secteur. Informations légales : Maisons Sésame, constructeur de maisons individuelles, propose une sélection de terrains en collaboration avec ses partenaires fonciers, sous réserve de disponibilité. Il n’agit pas en tant que mandataire pour la vente de ces terrains. Nos maisons, certifiées NF Habitat et conformes à la réglementation thermique en vigueur, vous garantissent un habitat durable et économe en énergie. Découvrez un large choix de modèles adaptés aux besoins de toute la famille. Informations tarifaires : Les prix indiqués sont donnés à titre indicatif et incluent les frais annexes hormis les frais de notaire (estimés à 15000€). Les visuels et prix présentés sont non contractuels. Pour plus de détails, consultez nos conditions en agence. N° ORIAS IOBSP 13007108 – RCS Versailles 388 867 426. Les informations sur les risques auxquels ce bien est exposé sont disponibles sur le site Géorisques : www.georisques.gouv.fr Cette annonce a été créée et diffusée avec le logiciel VITAHOME. Contactez Jeremy DEBERLES au 06 23 27 99 34 ou au 01 84 29 34 10 (Maisons Sésame - Agence de Baillet en France).

Proposé par MAISONS SÉSAME

Maison neuve - Projet de construction d'une maison 102 m² avec terrain à BAILLET-EN-FRANCE (95) à 62 rue Jean Nicolas (95), prix 156 819 €
156 819 €
102 m²
1537 €/m²

Maison neuve62 rue Jean Nicolas (95)

A BAILLET-EN-FRANCE sur un terrain de 452 m², MAISONS SESAME vous propose de réaliser cette maison neuve d'une surface de 102 m² habitables avec 4 chambres. Le modèle ATRIA 105 est une maison à étage de 102 m², offrant un agencement pratique et fonctionnel pour une vie familiale agréable. Le rez-de-chaussée comprend une chambre, qui peut également être aménagée en bureau pour répondre aux besoins du télétravail. Ce niveau dispose également d'un cellier pratique pour le stockage, ainsi qu'une grande pièce de vie lumineuse ouverte sur la cuisine. Une salle de bains et un WC séparé complètent ce niveau. À l'étage, vous trouverez 3 chambres,et une salle de bains pour un confort optimal. Le modèle ATRIA 105 combine ainsi praticité, confort et espace, idéal pour une famille moderne. MAISONS SÉSAME vous propose les prestations suivantes : - Plans des maisons modulables et adaptables selon vos besoins et les spécificités de votre terrain - Large choix de systèmes de chauffage performants et économes en énergie - Sélection de matériaux de qualité garantissant confort et durabilité - Accompagnement sur-mesure pour la recherche et l’acquisition de votre terrain - Construction conforme à la réglementation en vigueur et à la norme RE2020 - Maisons certifiées NF HABITAT, gage de qualité, de performance et de confort Informations du terrain : -Cadre exceptionnel -R+1 possible -Hors ABF -Exposition Sud -Emprise au sol 135 m² maximum Demandez une étude gratuite et personnalisée de votre projet de construction ! Étude gratuite de votre projet de construction ! De nombreux terrains disponibles dans votre secteur. Informations légales : Maisons Sésame, constructeur de maisons individuelles, propose une sélection de terrains en collaboration avec ses partenaires fonciers, sous réserve de disponibilité. Il n’agit pas en tant que mandataire pour la vente de ces terrains. Nos maisons, certifiées NF Habitat et conformes à la réglementation thermique en vigueur, vous garantissent un habitat durable et économe en énergie. Découvrez un large choix de modèles adaptés aux besoins de toute la famille. Informations tarifaires : Les prix indiqués sont donnés à titre indicatif et incluent les frais annexes hormis les frais de notaire(estimés à 15000€). Les visuels et prix présentés sont non contractuels. Pour plus de détails, consultez nos conditions en agence. N° ORIAS IOBSP 13007108 – RCS Versailles 388 867 426. Les informations sur les risques auxquels ce bien est exposé sont disponibles sur le site Géorisques : www.georisques.gouv.fr Cette annonce a été créée et diffusée avec le logiciel VITAHOME. Contactez Jeremy DEBERLES au 06 23 27 99 34 ou au 01 84 29 34 10 (Maisons Sésame - Agence de Baillet en France).

Proposé par MAISONS SÉSAME

Maison neuve - Projet de construction d'une maison 139 m² avec terrain à BAILLET-EN-FRANCE (95) à BAILLET-EN-FRANCE (95), prix 195 386 €
195 386 €
139 m²
1406 €/m²

Maison neuveBAILLET-EN-FRANCE (95)

A BAILLET-EN-FRANCE sur un terrain de 960 m², MAISONS SESAME vous propose de réaliser cette maison neuve d'une surface de 139 m² habitables avec 4 chambres. Le modèle EMERAUDE 140 est une maison familiale d’une superficie de 140 m², elle dispose de 4 chambres et est conçue pour optimiser les espaces tout en offrant une ambiance chaleureuse et accueillante. L'avancée de la maison, qui vient souligner son architecture élégante, lui confère un caractère distinctif, renforçant ainsi son style cossu. Au rez-de-chaussée, la cuisine ouverte se prolonge dans un grand séjour de 39 m², avec une vue agréable sur le jardin. Un cellier et une chambre indépendante viennent compléter ce niveau, avec un WC pour plus de praticité. À l’étage, les trois autres chambres sont accompagnées d’une salle de bain spacieuse et d’un grand dressing. La mezzanine, bien agencée, offre un espace supplémentaire qui peut facilement être transformé en bureau ou en ""boudoir"". Ce modèle, avec ses volumes généreux et son avancée distinctive, répond parfaitement aux besoins d’une grande famille. MAISONS SÉSAME vous propose les prestations suivantes : - Plans des maisons modulables et adaptables selon vos besoins et les spécificités de votre terrain - Large choix de systèmes de chauffage performants et économes en énergie - Sélection de matériaux de qualité garantissant confort et durabilité - Accompagnement sur-mesure pour la recherche et l’acquisition de votre terrain - Construction conforme à la réglementation en vigueur et à la norme RE2020 - Maisons certifiées NF HABITAT, gage de qualité, de performance et de confort Informations du terrain : -Cadre naturel préservé, paisible et verdoyant -Proches commerces, écoles et transports -Rare sur ce secteur très recherché -R+1 possible Demandez une étude gratuite et personnalisée de votre projet de construction ! Étude gratuite de votre projet de construction ! De nombreux terrains disponibles dans votre secteur. Informations légales : Maisons Sésame, constructeur de maisons individuelles, propose une sélection de terrains en collaboration avec ses partenaires fonciers, sous réserve de disponibilité. Il n’agit pas en tant que mandataire pour la vente de ces terrains. Nos maisons, certifiées NF Habitat et conformes à la réglementation thermique en vigueur, vous garantissent un habitat durable et économe en énergie. Découvrez un large choix de modèles adaptés aux besoins de toute la famille. Informations tarifaires : Les prix indiqués sont donnés à titre indicatif et n’incluent pas les frais annexes (frais de notaire, raccordements, etc.). Les visuels et prix présentés sont non contractuels. Pour plus de détails, consultez nos conditions en agence. N° ORIAS IOBSP 13007108 – RCS Versailles 388 867 426. Les informations sur les risques auxquels ce bien est exposé sont disponibles sur le site Géorisques : www.georisques.gouv.fr Cette annonce a été créée et diffusée avec le logiciel VITAHOME. Contactez Jeremy DEBERLES au 06 23 27 99 34 ou au 01 84 29 34 10 (Maisons Sésame - Agence de Baillet en France).

Proposé par MAISONS SÉSAME

Maison neuve - Projet de construction d'une maison 148 m² avec terrain à BAILLET-EN-FRANCE (95) à 62 rue Jean Nicolas (95), prix 197 852 €
197 852 €
148 m²
1337 €/m²

Maison neuve62 rue Jean Nicolas (95)

A BAILLET-EN-FRANCE sur un terrain de 452 m², MAISONS SESAME vous propose de réaliser cette maison neuve d'une surface de 148 m² habitables avec 5 chambres. Le modèle PYROPE 150 2 pans est une maison de 148 m², offrant des volumes généreux et un agencement optimisé pour un confort maximal. Son design élégant est accentué par un fronton et un porche rentrant, lui conférant un style à la fois raffiné et accueillant. Au rez-de-chaussée, vous trouverez une chambre pouvant parfaitement servir pour télétravailler, un cellier pratique pour le rangement, ainsi qu'une entrée spacieuse qui mène à un grand séjour lumineux. Ce niveau comprend également un WC séparé. À l'étage, les quatre chambres, dont une suite parentale avec sa propre salle de douche et un dressing privé, apportent une touche de luxe et d'intimité. Une salle de bains supplémentaire est partagée entre les autres chambres. MAISONS SÉSAME vous propose les prestations suivantes : - Plans des maisons modulables et adaptables selon vos besoins et les spécificités de votre terrain - Large choix de systèmes de chauffage performants et économes en énergie - Sélection de matériaux de qualité garantissant confort et durabilité - Accompagnement sur-mesure pour la recherche et l’acquisition de votre terrain - Construction conforme à la réglementation en vigueur et à la norme RE2020 - Maisons certifiées NF HABITAT, gage de qualité, de performance et de confort Informations du terrain : -Cadre exceptionnel -R+1 possible -Hors ABF -Exposition Sud -Emprise au sol 135 m² maximum Demandez une étude gratuite et personnalisée de votre projet de construction ! Étude gratuite de votre projet de construction ! De nombreux terrains disponibles dans votre secteur. Informations légales : Maisons Sésame, constructeur de maisons individuelles, propose une sélection de terrains en collaboration avec ses partenaires fonciers, sous réserve de disponibilité. Il n’agit pas en tant que mandataire pour la vente de ces terrains. Nos maisons, certifiées NF Habitat et conformes à la réglementation thermique en vigueur, vous garantissent un habitat durable et économe en énergie. Découvrez un large choix de modèles adaptés aux besoins de toute la famille. Informations tarifaires : Les prix indiqués sont donnés à titre indicatif et incluent les frais annexes hormis les frais de notaire (estimés à 15000€). Les visuels et prix présentés sont non contractuels. Pour plus de détails, consultez nos conditions en agence. N° ORIAS IOBSP 13007108 – RCS Versailles 388 867 426. Les informations sur les risques auxquels ce bien est exposé sont disponibles sur le site Géorisques : www.georisques.gouv.fr Cette annonce a été créée et diffusée avec le logiciel VITAHOME. Contactez Jeremy DEBERLES au 06 23 27 99 34 ou au 01 84 29 34 10 (Maisons Sésame - Agence de Baillet en France).

Proposé par MAISONS SÉSAME

Maison neuve - Projet de construction d'une maison 132 m² avec terrain à BAILLET-EN-FRANCE (95) à BAILLET-EN-FRANCE (95), prix 183 126 €
183 126 €
132 m²
1387 €/m²

Maison neuveBAILLET-EN-FRANCE (95)

A BAILLET-EN-FRANCE sur un terrain de 960 m², MAISONS SESAME vous propose de réaliser cette maison neuve d'une surface de 132 m² habitables avec 5 chambres. Le modèle PYROPE 130 2 pans est une maison de 132 m² au design élégant, mettant en valeur un fronton et un porche rentrant, ce qui lui confère un style à la fois raffiné et accueillant. Au rez-de-chaussée, vous trouverez un bureau idéal pour travailler à domicile, ainsi qu'une entrée spacieuse. Le grand séjour lumineux est ouvert sur une cuisine fonctionnelle, créant un espace de vie convivial. Ce niveau comprend également un WC séparé. À l’étage, les quatre chambres sont bien agencées, dont une suite parentale avec sa propre salle de douche. Ce modèle combine élégance, fonctionnalité et confort pour répondre aux besoins d’une famille moderne. MAISONS SÉSAME vous propose les prestations suivantes : - Plans des maisons modulables et adaptables selon vos besoins et les spécificités de votre terrain - Large choix de systèmes de chauffage performants et économes en énergie - Sélection de matériaux de qualité garantissant confort et durabilité - Accompagnement sur-mesure pour la recherche et l’acquisition de votre terrain - Construction conforme à la réglementation en vigueur et à la norme RE2020 - Maisons certifiées NF HABITAT, gage de qualité, de performance et de confort Informations du terrain : -Cadre naturel préservé, paisible et verdoyant -Proches commerces, écoles et transports -Rare sur ce secteur très recherché -R+1 possible Demandez une étude gratuite et personnalisée de votre projet de construction ! Étude gratuite de votre projet de construction ! De nombreux terrains disponibles dans votre secteur. Informations légales : Maisons Sésame, constructeur de maisons individuelles, propose une sélection de terrains en collaboration avec ses partenaires fonciers, sous réserve de disponibilité. Il n’agit pas en tant que mandataire pour la vente de ces terrains. Nos maisons, certifiées NF Habitat et conformes à la réglementation thermique en vigueur, vous garantissent un habitat durable et économe en énergie. Découvrez un large choix de modèles adaptés aux besoins de toute la famille. Informations tarifaires : Les prix indiqués sont donnés à titre indicatif et n’incluent pas les frais annexes (frais de notaire, raccordements, etc.). Les visuels et prix présentés sont non contractuels. Pour plus de détails, consultez nos conditions en agence. N° ORIAS IOBSP 13007108 – RCS Versailles 388 867 426. Les informations sur les risques auxquels ce bien est exposé sont disponibles sur le site Géorisques : www.georisques.gouv.fr Cette annonce a été créée et diffusée avec le logiciel VITAHOME. Contactez Jeremy DEBERLES au 06 23 27 99 34 ou au 01 84 29 34 10 (Maisons Sésame - Agence de Baillet en France).

Proposé par MAISONS SÉSAME

Maison neuve - Projet de construction d'une maison 49 m² avec terrain à BAILLET-EN-FRANCE (95) à 62 rue Jean Nicolas (95), prix 82 098 €
82 098 €
49 m²
1675 €/m²

Maison neuve62 rue Jean Nicolas (95)

A BAILLET-EN-FRANCE sur un terrain de 452 m², MAISONS SESAME vous propose de réaliser cette maison neuve d'une surface de 49 m² habitables avec 2 chambres. Le modèle PERLE 2 – Édition Limitée- est une maison de plain-pied pensée pour ceux qui recherchent confort et simplicité dans un cadre chaleureux. Son architecture contemporaine et son agencement optimisé en font un espace de vie agréable, idéal pour une vie paisible au quotidien. La cuisine ouverte, fonctionnelle et conviviale, s’intègre parfaitement à un salon-séjour lumineux. Cet espace de vie central, à la fois pratique et accueillant, permet de partager des moments de qualité en toute tranquillité. Côté nuit, la maison propose deux chambres confortables, parfaites pour une petite famille, un couple avec un espace bureau, ou pour recevoir occasionnellement. Une salle de bains bien agencée complète cet intérieur harmonieux. Parfaite pour le télétravail grâce à son ambiance calme et bien pensée, la PERLE 2 permet de concilier vie professionnelle et personnelle sans contrainte. Un véritable cocon moderne, simple et fonctionnel, pour se sentir bien chez soi chaque jour. MAISONS SÉSAME vous propose les prestations suivantes : - Plans des maisons modulables et adaptables selon vos besoins et les spécificités de votre terrain - Large choix de systèmes de chauffage performants et économes en énergie - Sélection de matériaux de qualité garantissant confort et durabilité - Accompagnement sur-mesure pour la recherche et l’acquisition de votre terrain - Construction conforme à la réglementation en vigueur et à la norme RE2020 - Maisons certifiées NF HABITAT, gage de qualité, de performance et de confort Informations du terrain : -Cadre exceptionnel -R+1 possible -Hors ABF -Exposition Sud -Emprise au sol 135 m² maximum Demandez une étude gratuite et personnalisée de votre projet de construction ! Étude gratuite de votre projet de construction ! De nombreux terrains disponibles dans votre secteur. Informations légales : Maisons Sésame, constructeur de maisons individuelles, propose une sélection de terrains en collaboration avec ses partenaires fonciers, sous réserve de disponibilité. Il n’agit pas en tant que mandataire pour la vente de ces terrains. Nos maisons, certifiées NF Habitat et conformes à la réglementation thermique en vigueur, vous garantissent un habitat durable et économe en énergie. Découvrez un large choix de modèles adaptés aux besoins de toute la famille. Informations tarifaires : Les prix indiqués sont donnés à titre indicatif et incluent les frais annexes hormis les frais de notaire (estimés à 15000€). Les visuels et prix présentés sont non contractuels. Pour plus de détails, consultez nos conditions en agence. N° ORIAS IOBSP 13007108 – RCS Versailles 388 867 426. Les informations sur les risques auxquels ce bien est exposé sont disponibles sur le site Géorisques : www.georisques.gouv.fr Cette annonce a été créée et diffusée avec le logiciel VITAHOME. Contactez Jeremy DEBERLES au 06 23 27 99 34 ou au 01 84 29 34 10 (Maisons Sésame - Agence de Baillet en France).

Proposé par MAISONS SÉSAME

Maison neuve - Projet de construction d'une maison 132 m² avec terrain à BAILLET-EN-FRANCE (95) à BAILLET-EN-FRANCE (95), prix 183 126 €
183 126 €
132 m²
1387 €/m²

Maison neuveBAILLET-EN-FRANCE (95)

A BAILLET-EN-FRANCE sur un terrain de 520 m², MAISONS SESAME vous propose de réaliser cette maison neuve d'une surface de 132 m² habitables avec 5 chambres. Le modèle PYROPE 130 2 pans est une maison de 132 m² au design élégant, mettant en valeur un fronton et un porche rentrant, ce qui lui confère un style à la fois raffiné et accueillant. Au rez-de-chaussée, vous trouverez un bureau idéal pour travailler à domicile, ainsi qu'une entrée spacieuse. Le grand séjour lumineux est ouvert sur une cuisine fonctionnelle, créant un espace de vie convivial. Ce niveau comprend également un WC séparé. À l’étage, les quatre chambres sont bien agencées, dont une suite parentale avec sa propre salle de douche. Ce modèle combine élégance, fonctionnalité et confort pour répondre aux besoins d’une famille moderne. MAISONS SÉSAME vous propose les prestations suivantes : - Plans des maisons modulables et adaptables selon vos besoins et les spécificités de votre terrain - Large choix de systèmes de chauffage performants et économes en énergie - Sélection de matériaux de qualité garantissant confort et durabilité - Accompagnement sur-mesure pour la recherche et l’acquisition de votre terrain - Construction conforme à la réglementation en vigueur et à la norme RE2020 - Maisons certifiées NF HABITAT, gage de qualité, de performance et de confort Informations du terrain : au calme proche de toutes comoditées Demandez une étude gratuite et personnalisée de votre projet de construction ! Étude gratuite de votre projet de construction ! De nombreux terrains disponibles dans votre secteur. Informations légales : Maisons Sésame, constructeur de maisons individuelles, propose une sélection de terrains en collaboration avec ses partenaires fonciers, sous réserve de disponibilité. Il n’agit pas en tant que mandataire pour la vente de ces terrains. Nos maisons, certifiées NF Habitat et conformes à la réglementation thermique en vigueur, vous garantissent un habitat durable et économe en énergie. Découvrez un large choix de modèles adaptés aux besoins de toute la famille. Informations tarifaires : Les prix indiqués sont donnés à titre indicatif et n’incluent pas les frais annexes (frais de notaire, raccordements, etc.). Les visuels et prix présentés sont non contractuels. Pour plus de détails, consultez nos conditions en agence. N° ORIAS IOBSP 13007108 – RCS Versailles 388 867 426. Les informations sur les risques auxquels ce bien est exposé sont disponibles sur le site Géorisques : www.georisques.gouv.fr Cette annonce a été créée et diffusée avec le logiciel VITAHOME. Contactez Christophe RIBEIRO au 06 58 91 51 35 ou au 01 39 83 27 47 (Maisons Sésame - Agence d'Eaubonne).

Proposé par MAISONS SÉSAME

Maison neuve - Projet de construction d'une maison 49 m² avec terrain à BAILLET-EN-FRANCE (95) à BAILLET-EN-FRANCE (95), prix 82 098 €
82 098 €
49 m²
1675 €/m²

Maison neuveBAILLET-EN-FRANCE (95)

A BAILLET-EN-FRANCE sur un terrain de 960 m², MAISONS SESAME vous propose de réaliser cette maison neuve d'une surface de 49 m² habitables avec 2 chambres. Le modèle PERLE 2 – Édition Limitée- est une maison de plain-pied pensée pour ceux qui recherchent confort et simplicité dans un cadre chaleureux. Son architecture contemporaine et son agencement optimisé en font un espace de vie agréable, idéal pour une vie paisible au quotidien. La cuisine ouverte, fonctionnelle et conviviale, s’intègre parfaitement à un salon-séjour lumineux. Cet espace de vie central, à la fois pratique et accueillant, permet de partager des moments de qualité en toute tranquillité. Côté nuit, la maison propose deux chambres confortables, parfaites pour une petite famille, un couple avec un espace bureau, ou pour recevoir occasionnellement. Une salle de bains bien agencée complète cet intérieur harmonieux. Parfaite pour le télétravail grâce à son ambiance calme et bien pensée, la PERLE 2 permet de concilier vie professionnelle et personnelle sans contrainte. Un véritable cocon moderne, simple et fonctionnel, pour se sentir bien chez soi chaque jour. MAISONS SÉSAME vous propose les prestations suivantes : - Plans des maisons modulables et adaptables selon vos besoins et les spécificités de votre terrain - Large choix de systèmes de chauffage performants et économes en énergie - Sélection de matériaux de qualité garantissant confort et durabilité - Accompagnement sur-mesure pour la recherche et l’acquisition de votre terrain - Construction conforme à la réglementation en vigueur et à la norme RE2020 - Maisons certifiées NF HABITAT, gage de qualité, de performance et de confort Informations du terrain : -Cadre naturel préservé, paisible et verdoyant -Proches commerces, écoles et transports -Rare sur ce secteur très recherché -R+1 possible Demandez une étude gratuite et personnalisée de votre projet de construction ! Étude gratuite de votre projet de construction ! De nombreux terrains disponibles dans votre secteur. Informations légales : Maisons Sésame, constructeur de maisons individuelles, propose une sélection de terrains en collaboration avec ses partenaires fonciers, sous réserve de disponibilité. Il n’agit pas en tant que mandataire pour la vente de ces terrains. Nos maisons, certifiées NF Habitat et conformes à la réglementation thermique en vigueur, vous garantissent un habitat durable et économe en énergie. Découvrez un large choix de modèles adaptés aux besoins de toute la famille. Informations tarifaires : Les prix indiqués sont donnés à titre indicatif et n’incluent pas les frais annexes (frais de notaire, raccordements, etc.). Les visuels et prix présentés sont non contractuels. Pour plus de détails, consultez nos conditions en agence. N° ORIAS IOBSP 13007108 – RCS Versailles 388 867 426. Les informations sur les risques auxquels ce bien est exposé sont disponibles sur le site Géorisques : www.georisques.gouv.fr Cette annonce a été créée et diffusée avec le logiciel VITAHOME. Contactez Jeremy DEBERLES au 06 23 27 99 34 ou au 01 84 29 34 10 (Maisons Sésame - Agence de Baillet en France).

Proposé par MAISONS SÉSAME

Maison neuve - Projet de construction d'une maison 132 m² avec terrain à BAILLET-EN-FRANCE (95) à RUE DE LA MAIRIE (95), prix 187 072 €
187 072 €
132 m²
1417 €/m²

Maison neuveRUE DE LA MAIRIE (95)

A BAILLET-EN-FRANCE sur un terrain de 400 m², MAISONS SESAME vous propose de réaliser cette maison neuve d'une surface de 132 m² habitables avec 5 chambres. Le modèle PYROPE 130 4 pans est une maison de 132 m², dotée d'un toit à 4 pans qui lui confère un design cossu et une silhouette élégante avec son fronton et son porche rentrant. Ce toit spécifique apporte une touche de caractère et d'originalité à l'ensemble de la maison. Au rez-de-chaussée, vous trouverez un bureau, idéal pour travailler à domicile, ainsi qu'une entrée spacieuse qui mène à un grand séjour lumineux, ouvert sur une cuisine pratique. Ce niveau comprend également un WC séparé. À l’étage, les quatre chambres sont bien agencées, dont une suite parentale avec sa propre salle de douche. Le modèle PYROPE 130 4 pans offre un parfait équilibre entre confort, fonctionnalité et esthétique. MAISONS SÉSAME vous propose les prestations suivantes : - Plans des maisons modulables et adaptables selon vos besoins et les spécificités de votre terrain - Large choix de systèmes de chauffage performants et économes en énergie - Sélection de matériaux de qualité garantissant confort et durabilité - Accompagnement sur-mesure pour la recherche et l’acquisition de votre terrain - Construction conforme à la réglementation en vigueur et à la norme RE2020 - Maisons certifiées NF HABITAT, gage de qualité, de performance et de confort Demandez une étude gratuite et personnalisée de votre projet de construction ! Étude gratuite de votre projet de construction ! De nombreux terrains disponibles dans votre secteur. Informations légales : Maisons Sésame, constructeur de maisons individuelles, propose une sélection de terrains en collaboration avec ses partenaires fonciers, sous réserve de disponibilité. Il n’agit pas en tant que mandataire pour la vente de ces terrains. Nos maisons, certifiées NF Habitat et conformes à la réglementation thermique en vigueur, vous garantissent un habitat durable et économe en énergie. Découvrez un large choix de modèles adaptés aux besoins de toute la famille. Informations tarifaires : Les prix indiqués sont donnés à titre indicatif et n’incluent pas les frais annexes (frais de notaire, raccordements, etc.). Les visuels et prix présentés sont non contractuels. Pour plus de détails, consultez nos conditions en agence. N° ORIAS IOBSP 13007108 – RCS Versailles 388 867 426. Les informations sur les risques auxquels ce bien est exposé sont disponibles sur le site Géorisques : www.georisques.gouv.fr Cette annonce a été créée et diffusée avec le logiciel VITAHOME. Contactez Samir MIHOUB au 07 86 53 75 91 ou au 01 82 20 01 50 (Maisons Sésame - Agence de Coignières).

Proposé par MAISONS SÉSAME


Illustration Maisons neuves en vente à proximité de Puiseux en france (95)

Maisons neuves en vente à proximité de Puiseux en france (95)

Puiseux, située dans le département du Val-d'Oise (95), est une charmante commune française. Nichée à proximité de Cergy-Pontoise, elle offre un cadre de vie paisible et verdoyant. La ville est particulièrement appréciée pour son environnement naturel et ses espaces verts. Investir dans une maison neuve à Puiseux, c'est choisir un lieu de vie équilibré entre tranquillité et proximité des commodités urbaines. Profitez d'un cadre idéal pour les familles et les amateurs de nature.

Autres villes actives à Val-d'oise (95)


Conseils pour l'achat d'un bien immobilier

Découvrez notre sélection de maisons neuves, synonymes de confort moderne et de sérénité. Trouvez votre futur chez-vous.

L'avantage d'une maison neuve

Choisir une maison neuve, c'est bénéficier des dernières normes énergétiques (RE2020) pour des économies durables, de frais de notaire réduits, et des garanties constructeur (parfait achèvement, décennale) pour une tranquillité d'esprit.

Nos types d'annonces

Explorez nos annonces : maisons clés en main prêtes à décorer, ou programmes terrain + maison pour personnaliser certains aspects.