

- Prix
- 270 000 €
Maison neuve • Bonneuil-en-Valois (60)
- Nom et prix
- Terrain à bâtir () • 270 000 €
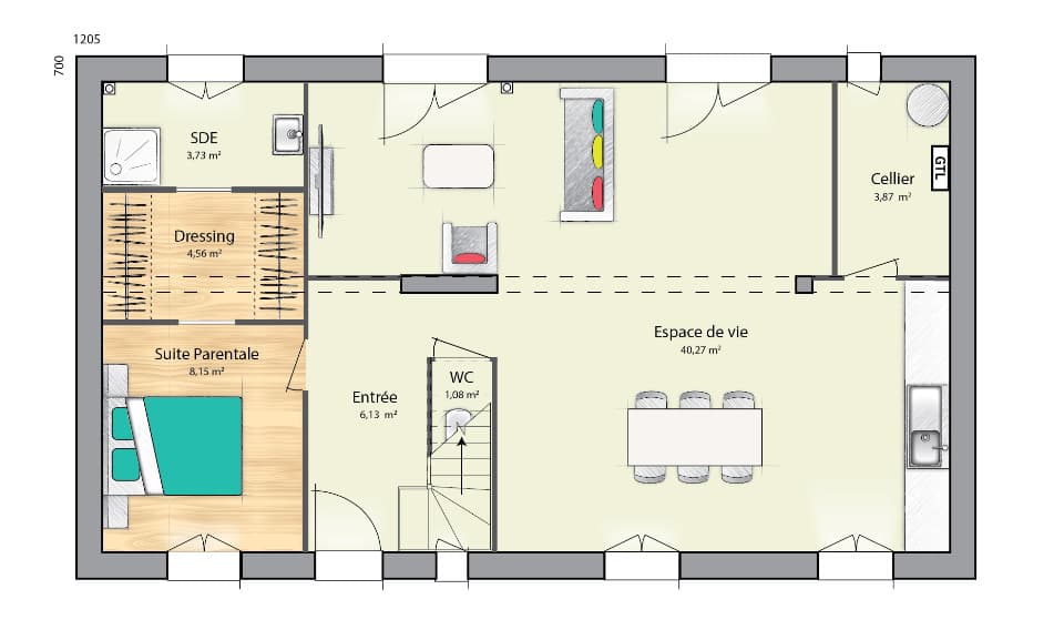
Terrain à bâtir sur la charmante commune de BONNEUIL EN VALOIS (60), d'une superficie de 630 m²,plat, avec belle façade constructible de 22.00 ml, idéalement situé à 20 minutes au nord de CREPY EN VALOIS. Au calme, dans un village avec commerces et écoles, à 40 min de Roissy CDG et 20 min de Crépy-en-Valois. Etude de sol G1 effectuée et OK. Non soumis aux autorisations ABF. Exemple de projet maison de 105 m² de surface habitable. sans Garage. Tous nos projets sont entièrement réalisés sur-mesure, de nombreuses prestations incluses: baies coulissantes en aluminium, volets roulants intégrés à la maçonnerie (non-apparents) motorisés. Entrée, cuisine, pièce de vie, cellier et pièces d'eau carrelés, maison prête à décorer, clef en main. Pompe à chaleur ou pompe à chaleur hybride (gaz) dernière génération (classe énergétique A+), plancher chauffant RDC (et ETAGE), sèche-serviettes, plusieurs choix de menuiseries intérieures, construction en brique. RE 2020. Projet terrain + maison + frais annexes. Pour tout renseignement contacter XAVIER de l'agence Maisons France Confort au 06 16 27 53 27