

- Prix
- 360 000 €
Maison neuve • Saint-Vrain (91)
- Nom et prix
- Terrain à bâtir Saint-Vrain (91770) • 360 000 €
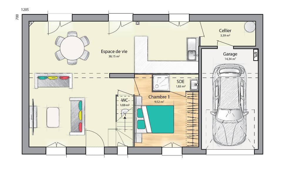
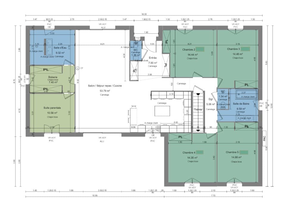
Saint-Vrain, Île de France (91770), pour 360 000 € : Beau pavillon contemporain de 5 pièces (90 m²), constructible à proximité du RER C, sur un vaste terrain de 731 m² ! Découvrez ce charmant modèle de maison respectant les normes RE2020, idéalement situé au coeur de l'Essonne. Réalisable sur un terrain spacieux de 731 m², profond de 40 mètres et offrant une façade constructible de 14,63 mètres, ce bien saura répondre à toutes vos attentes. Situé à seulement 8 minutes à pied d'une école et à 10 minutes des commerces, ce pavillon est parfait pour une famille en quête de confort et de commodité. Les transports sont également facilités grâce à la gare de Bouray-Lardy, desservant le RER C, qui permet de rejoindre Paris en seulement 40 minutes. Que vous cherchiez à investir, à offrir un cadre de vie agréable à votre famille ou à profiter d'une retraite paisible, cette parcelle est faite pour vous. Dans notre agence d'Ormoy des Maisons Balency, spécifiquement, nous vous proposons des réalisations totalement sur-mesure, conceptualisées avec soin. Nous pouvons également adapter nos modèles existants pour répondre à vos besoins spécifiques. Que vous soyez un jeune couple, une famille nombreuse ou des jeunes retraités, nous nous adaptons à tous les profils pour créer la maison de vos rêves. N'hésitez pas à nous contacter au 06 49 43 56 27 pour lancer une recherche foncière gratuite et débuter votre projet de construction. Laissez-nous vous accompagner dans la réalisation de votre future demeure en Île de France !
