

- Prix
- 710 000 €
Maison neuve • Saint-Maur-des-Fossés (94)
- Nom et prix
- Terrain à bâtir Saint-Maur-des-Fossés (94100) • 710 000 €
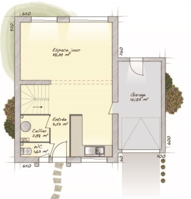
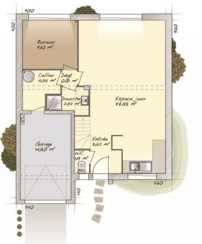
VENTE d'une maison de 5 pièces (90 m²) à Saint-Maur-des-Fossés MAISON 5 PIÈCES NEUVE À 935 m de la station Le Parc de Saint-Maur (Paris à 15 min par le RER A), découvrez cette maison de 5 pièces de 90 m² et de 710 m² de terrain à Saint-Maur-des-Fossés (94100). C'est une maison de 2 niveaux. Son intérieur dispose de trois chambres, d'une cuisine et d'une salle de bains. La maison est neuve. Il y a des écoles de tous niveaux (de la maternelle au lycée) à moins de 10 minutes à pied, tout comme huit crèches. Il y a un bassin de natation, des commerces, des boulangeries, trois supermarchés, des supérettes et des épiceries à quelques minutes de la maison. Elle est à vendre pour la somme de 710 000 €. Prenez contact avec Krizia FERNE (07-83-36-28-46) pour plus de renseignements sur ce bien ou sur les démarches à suivre.











