

- Prix
- 826 000 €
Maison neuve • Maisons-Alfort (94)
- Nom et prix
- Terrain à bâtir Maisons-Alfort (94700) • 826 000 €
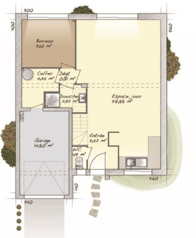
VENTE d'une maison de 6 pièces (128 m²) à Maisons-Alfort MAISON 6 PIÈCES NEUVE À côté de la station Maisons-Alfort-Alfortville du RER D (5 min de Paris), à vendre à Maisons-Alfort (94700), nous vous proposons cette maison de 6 pièces de 128 m². Il s'agit d'une maison de 2 niveaux. Elle propose quatre chambres, une cuisine et deux salles de bains. Cette maison est neuve. Le terrain de la propriété s'étend sur 293 m². Des établissements scolaires de tous niveaux se trouvent à moins de 10 minutes à pied, tout comme cinq structures d'accueil pour les tout-petits. Niveau transports en commun, il y a cinq lignes de RER ainsi que 38 gares à moins de 10 minutes en voiture. On trouve trois tennis, une bibliothèque, un bassin de natation, des supermarchés, des boulangeries, des commerces, des boucheries-charcuteries et deux bureaux de poste à proximité. Son prix de vente est de 826 000 €. N'hésitez pas à prendre contact avec Aurelien MONTANIER (tél : 06-24-66-88-34) pour tout renseignement sur la maison. Donnez vie à vos projets immobiliers avec Maisons Balency Saint-Maur-des-Fossés.











