

- Prix
- 369 000 €
Maison neuve • Châtres (77)
- Nom et prix
- Terrain à bâtir Châtres (77610) • 369 000 €
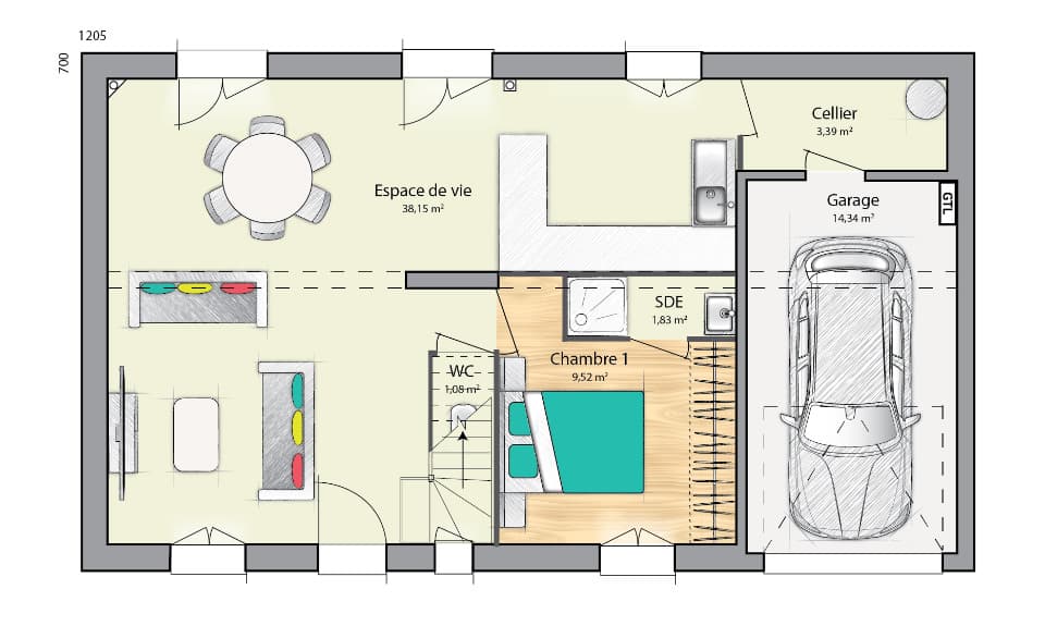
Châtres, en Île de France (77610) pour 369 000 € : Joli Pavillon Contemporain de 90 m² situé sur un terrain VIABILISÉ de 612 m², proche des RER E et P ! 🌳 Faites construire la maison de vos rêves sur une spacieuse parcelle localisée à 6 minutes à pied d'une école publique, ainsi qu'à 7 minutes en voiture de la Gare de Tournan ; elle est le lieu idéal pour réaliser la construction que vous souhaitez. Profitez des commodités de Châtres, telles que ses espaces verts et ses commerces de proximité. Au sein des Maisons Balency d'ORMOY spécifiquement, nous vous proposons des réalisations totalement sur-mesure, conformes aux dernières normes RE2020. Nos experts peuvent réaliser différents types d'architectures singulières sur-mesure, ou adapter des modèles déjà existants à votre cahier des charges. Appelez-nous dès aujourd'hui au 06 49 43 56 27 pour lancer une recherche foncière gratuite et débuter votre projet de construction dans les meilleures conditions !