
Maison neuve • Compiègne (60)
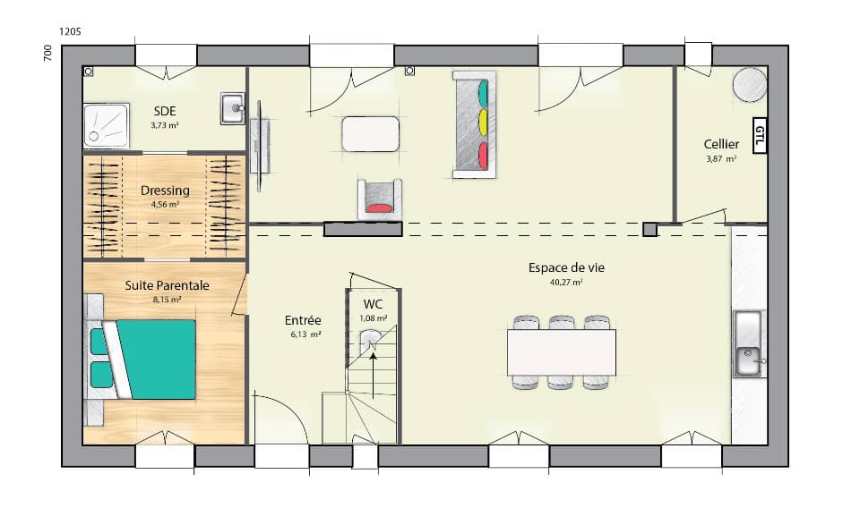
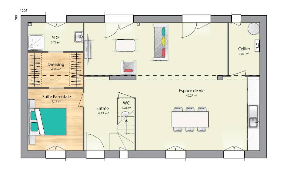
A Compiègne , entre foret et hyper centre ville , découvrez cette maison de 125m² habitables , située sur un terrain de 1160m² viabilisé , exposé plein sud , en bordure immédiate de foret et sans vis à vis, . Environnement paisible et résidentiel , à deux pas des écoles - collèges et lycées , commerces (boulangerie , boucherie ..), cabinets médicaux . Cette maison dispose de , 4 chambres avec rangements intégrés , séjour lumineux et cuisine ouverte ,2 salles d'eau équipées , ,cellier et garage , packs alarme et domotique , grandes baies aluminium , volets roulants centralisés et intégrés à la maçonnerie ... Plans 100% personnalisables et modifiables . Accompagnement intégral : Financement , étude technique du terrain , gestion administrative . Frais annexes ( raccordements , viabilisation , puisards, enlèvements des terres excédentaires , chemin d'accès )inclus dans le prix de cette annonce . Contactez moi pour une étude gratuite . Rendez vous en agence ou à votre domicile . VERON ANTHONY /07/77/85/58/88/
Proposé par MAISONS FRANCE CONFORT - COMPIEGNE










