

- Prix
- 175 831 €
Maison neuve • BREUILLET (91)
- Nom et prix
- Projet de construction d'une maison 118 m² avec terrain à BREUILLET (91) • 175 831 €
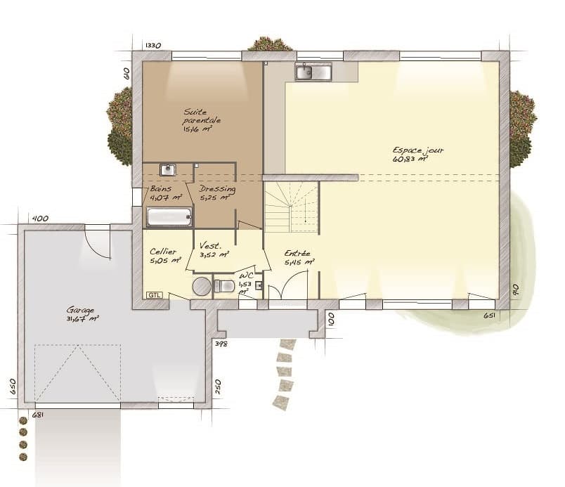
A BREUILLET sur un terrain de 1062 m², MAISONS SESAME vous propose de réaliser cette maison neuve d'une surface de 118 m² habitables avec 4 chambres. Avec ses 118 m² de surface habitable, la maison ALYA 120 offre un cadre de vie spacieux et fonctionnel, parfaitement adapté aux familles à la recherche de confort et de praticité. Son rez-de-chaussée de 118 m² est intelligemment agencé pour optimiser chaque espace. Avec cinq pièces, dont quatre chambres, ce modèle permet d’accueillir une grande famille tout en offrant la possibilité d’aménager un bureau ou une pièce polyvalente selon les besoins. La pièce de vie, lumineuse et conviviale, constitue un véritable espace de partage et de détente, idéal pour les moments en famille ou entre amis. Grâce à son design soigné et à son agencement équilibré, l’ALYA 120 séduit par son harmonie entre modernité et fonctionnalité. Son espace généreux en fait un choix idéal pour ceux qui recherchent une maison confortable et bien pensée. MAISONS SÉSAME vous propose les prestations suivantes : - Plans des maisons modulables et adaptables selon vos besoins et les spécificités de votre terrain - Large choix de systèmes de chauffage performants et économes en énergie - Sélection de matériaux de qualité garantissant confort et durabilité - Accompagnement sur-mesure pour la recherche et l’acquisition de votre terrain - Construction conforme à la réglementation en vigueur et à la norme RE2020 - Maisons certifiées NF HABITAT, gage de qualité, de performance et de confort Informations du terrain : Grande façade, cadre idyllique, en lisière de foret et de zone classé naturel, a seulement 3 minutes des commerces. Demandez une étude gratuite et personnalisée de votre projet de construction ! Étude gratuite de votre projet de construction ! De nombreux terrains disponibles dans votre secteur. Informations légales : Maisons Sésame, constructeur de maisons individuelles, propose une sélection de terrains en collaboration avec ses partenaires fonciers, sous réserve de disponibilité. Il n’agit pas en tant que mandataire pour la vente de ces terrains. Nos maisons, certifiées NF Habitat et conformes à la réglementation thermique en vigueur, vous garantissent un habitat durable et économe en énergie. Découvrez un large choix de modèles adaptés aux besoins de toute la famille. Informations tarifaires : Les prix indiqués sont donnés à titre indicatif et n’incluent pas les frais annexes (frais de notaire, raccordements, etc.). Les visuels et prix présentés sont non contractuels. Pour plus de détails, consultez nos conditions en agence. N° ORIAS IOBSP 13007108 – RCS Versailles 388 827 426. Cette annonce a été créée et diffusée avec le logiciel VITAHOME. Contactez Marine FERNANDES au 06 73 29 78 96 ou au 01 69 05 14 14 (Maisons Sésame - Agence de Juvisy-sur-Orge).











