

- Prix
- 329 000 €
Maison neuve • Aigné (72)
- Nom et prix
- Terrain à bâtir () • 329 000 €
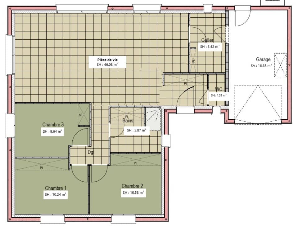
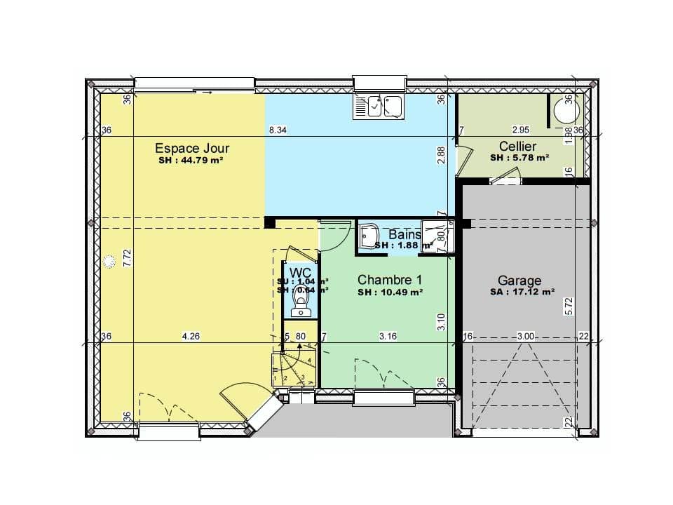
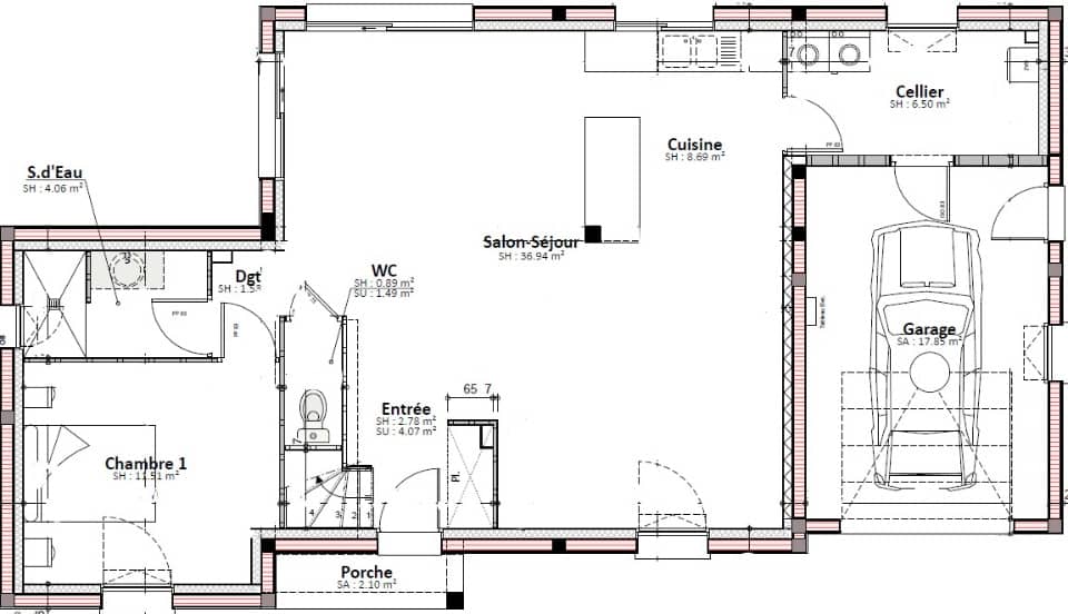
Aigné : maison de 6 pièces (128 m²) en vente EMPLACEMENT PRIVILÉGI- MAISON 6 PIÈCES NEUVE À 11 km du Mans, notre agence Maine Construction Saint-Saturnin est heureuse de vous présenter cette maison de 6 pièces de 128 m² et de 376 m² de terrain en vente bénéficiant d'un emplacement privilégié dans Aigné (72650). Cette maison compte 2 niveaux. Son intérieur est composé de quatre chambres, d'une cuisine et de deux salles de bains. Cette maison est neuve. La maison est située dans un secteur prisé. L'École Primaire Publique Roger Bazille se trouve à moins de 10 minutes à pied. Niveau transports en commun, il y a quatre gares à moins de 10 minutes en voiture. On trouve un accès à l'autoroute A11 à 4 km. On trouve un tennis dans les environs. Elle est proposée à l'achat pour 329 000 €. Contactez Luc LIVET (07-77-76-37-30) pour plus d'informations sur la maison, sur les modalités de vente ou sur les démarches à suivre. Maine Construction Saint-Saturnin vous accompagne dans tous vos projets immobiliers et à toutes les étapes de votre projet.










