

- Prix
- 311 623 €
Maison neuve • Trilbardou (77)
- Nom et prix
- Terrain à bâtir () • 311 623 €
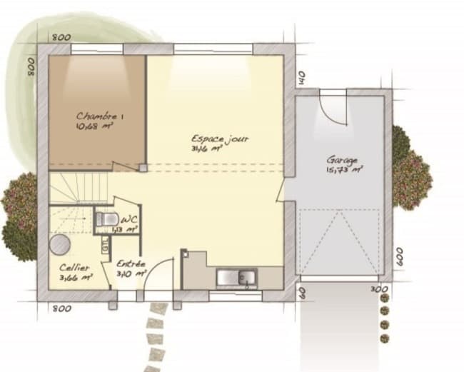
Trilbardou : maison F6 (98 m²) en vente PROCHE DE MONTREUIL - MAISON 6 PIÈCES NEUVE En vente : à deux pas de la gare d'Esbly (Paris à 30 min par le Transilien P), à Trilbardou (77450), votre agence Maisons Balency Dammartin-en-Goële est ravie de vous proposer cette maison de 6 pièces de 98 m² et de 330 m² de terrain. Cette maison possède 2 niveaux. Son intérieur inclut quatre chambres, une cuisine et une salle de bains. Cette maison est neuve. Il y a l'École Primaire Simonne Debeaupuis à moins de 10 minutes à pied. Côté transports en commun, on trouve la station de RER Chessy-Marne-La-Vallée (ligne A) ainsi que cinq gares à moins de 10 minutes en voiture. Il y a un tennis à quelques minutes. Elle est à vendre pour la somme de 311 623 €. N'hésitez pas à prendre contact avec notre agence (DARTEVELLE Sébastien : 06-24-63-58-60) pour tout renseignement sur le bien ou sur les modalités de vente. Maisons Balency Dammartin-en-Goële vous accompagne à toutes les étapes de votre projet et dans tous vos projets immobiliers.