

- Prix
- 152 346 €
Maison neuve • PUISEUX-EN-FRANCE (95)
- Nom et prix
- Projet de construction d'une maison 98 m² avec terrain à PUISEUX-EN-FRANCE (95) • 152 346 €
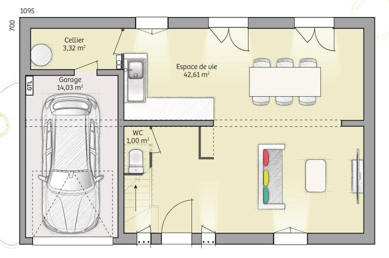
A PUISEUX-EN-FRANCE sur un terrain de 355 m², MAISONS SESAME vous propose de réaliser cette maison neuve d'une surface de 98 m² habitables avec 4 chambres. La maison ALYA 100 allie charme et agencement moderne pour offrir un cadre de vie agréable et fonctionnel. Avec une surface habitable de 98 m², ce modèle a été conçu pour répondre aux besoins des familles en quête d’espace et de confort. Le rez-de-chaussée de 98 m² propose cinq pièces, dont quatre chambres, permettant ainsi d’accueillir une famille nombreuse ou de disposer de pièces supplémentaires pour un bureau ou une salle de loisirs. La grande pièce de vie, lumineuse et conviviale, constitue le cœur de la maison, offrant un espace de partage et de détente. Grâce à son architecture intemporelle, l’ALYA 100 séduit par son équilibre entre tradition et modernité. Son agencement bien pensé et ses volumes généreux en font un choix idéal pour les familles recherchant une maison spacieuse et harmonieuse. MAISONS SÉSAME vous propose les prestations suivante Étude gratuite de votre projet de construction ! De nombreux terrains disponibles dans votre secteur. Informations légales : Maisons Sésame, constructeur de maisons individuelles, propose une sélection de terrains en collaboration avec ses partenaires fonciers, sous réserve de disponibilité. Il n’agit pas en tant que mandataire pour la vente de ces terrains. Nos maisons, certifiées NF Habitat et conformes à la réglementation thermique en vigueur, vous garantissent un habitat durable et économe en énergie. Découvrez un large choix de modèles adaptés aux besoins de toute la famille. Informations tarifaires : Les prix indiqués sont donnés à titre indicatif et n’incluent pas les frais annexes (frais de notaire, raccordements, etc.). Les visuels présentés sont non contractuels. Pour plus de détails, consultez nos conditions en agence. N° ORIAS IOBSP 13007108 – RCS Versailles 388 827 426. Cette annonce a été créée et diffusée avec le logiciel VITAHOME. Contactez Nassim LAADJ au 06 10 14 52 18 ou au 01 39 83 27 47 (Maisons Sésame - Agence d'Eaubonne).









