

- Prix
- 186 000 €
Maison neuve • Montagnac (34)
- Nom et prix
- Terrain à bâtir () • 186 000 €
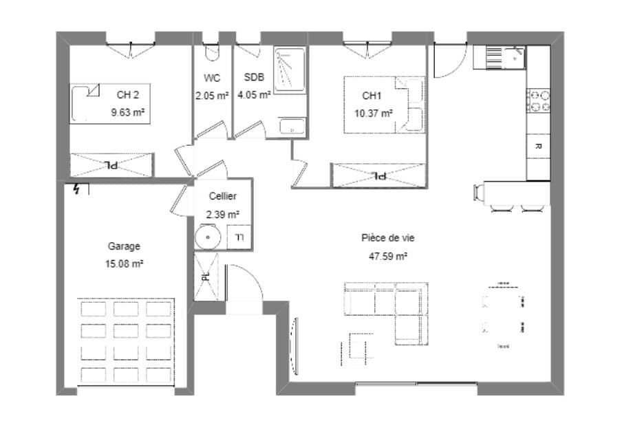
PROJET DE CONSTRUCTION - Maison F3 (60 m²) à Montagnac PROCHE DE BÉZIERS - MAISON 3 PIÈCES À 19 km de la mer Méditerranée et à 26 km de Béziers, Maisons de Manon Béziers vous propose cette maison de 3 pièces de plain-pied de 60 m² et de 200 m² de terrain à Montagnac (34530). Son intérieur comporte deux chambres, une cuisine, un cellier, une salle de bains et un garage. (Carrelage inclus dans toutes les pièces / Raccordements inclus). L'École Primaire Privée de Puységur, le Collège Jules Ferry, l'École Élémentaire Louis Pasteur et l'École Maternelle Jules Ferry sont implantés à moins de 10 minutes à pied, tout comme une structure d'accueil pour les tout-petits. On trouve un accès à l'autoroute A75 à 4 km. On trouve des boulangeries, quatre commerces, quatre boucheries-charcuteries, un bureau de poste et trois épiceries dans les environs. Elle est proposée à l'achat pour 186 000 €. Pour plus d'information contacter (Anthony BALLESTER : 06.27.21.51.55) Maisons de Manon Béziers pour échanger sur votre projet et réaliser une étude gratuite. (Plan personnalisable). Tous nos ouvrages sont réalisés sur-mesure en fonction de vos attentes et de nos échanges avec vous ainsi que dans le respect de la règlementation RE 2020. Ce projet comporte les garanties suivantes: Contrat de construction CCMI. Dommage/Ouvrage. RC Garantie décennale. Parfaite achèvement. Etude de sol G2. Prix et délais convenu. Garantie financière Pour votre tranquillité nous nous occupons de toutes les formalités administratives.












