

- Prix
- 907 000 €
Maison neuve • Chatou (78)
- Nom et prix
- Terrain à bâtir Chatou (78400) • 907 000 €
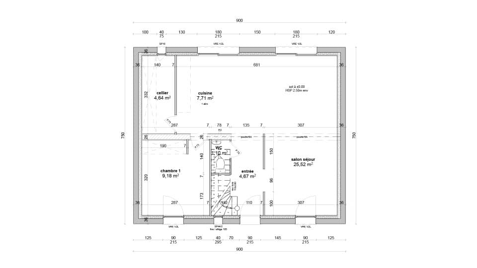
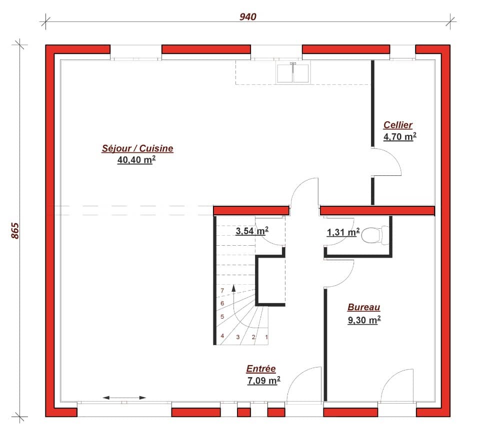
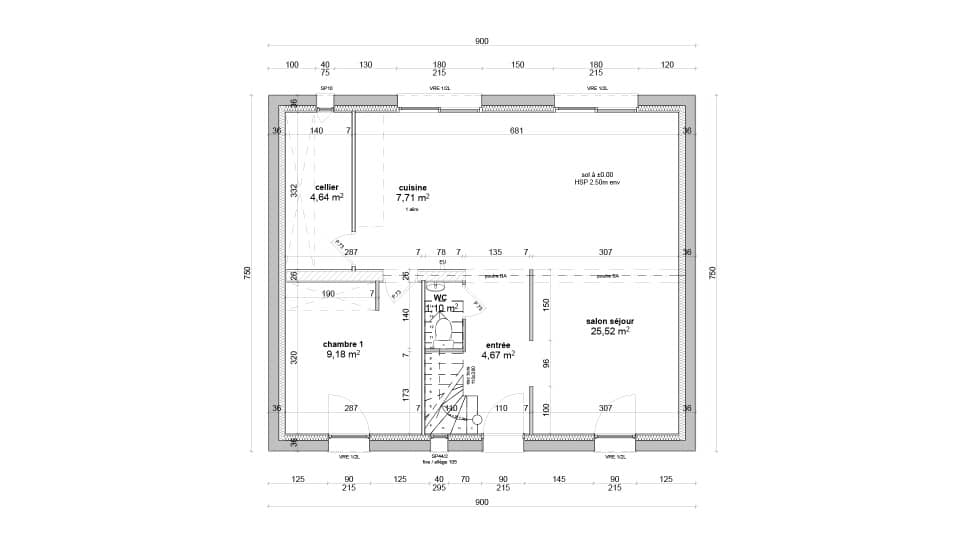
VENTE d'une maison T6 (190 m²) à Chatou EMPLACEMENT PRIVILÉGI- VUE DÉGAGÉE À vendre : à deux pas de la station Chatou-Croissy du RER A (15 min de Paris), bénéficiant d'un emplacement privilégié dans Chatou (78400), Maisons Berval Rueil-Malmaison vous présente cette maison de 6 pièces de 190 m² avec vue dégagée. Il s'agit d'une maison de 2 niveaux. Elle dispose de quatre chambres, d'une cuisine et de deux salles de bains. La maison est neuve. Le terrain de la propriété est de 515 m². La maison se situe dans un secteur recherché. Il y a plusieurs établissements scolaires (maternelle, élémentaire, primaire et collège) à moins de 10 minutes à pied, tout comme deux structures d'accueil pour la petite enfance. Niveau transports en commun, on trouve les lignes de RER A et C ainsi que 47 gares à moins de 10 minutes en voiture. Il y a deux bibliothèques, un tennis, des boulangeries, des commerces, deux bureaux de poste, deux supérettes et deux boucheries-charcuteries à proximité. Enfin, le marché Avenue Maupassant anime le quartier. Elle est proposée à l'achat pour 907 000 €. Contactez notre agence (LE MOEL Marc : 06-52-02-43-99) pour toute question sur la maison ou sur les démarches à suivre. Maisons BERVAL bénéficie de la triple Certification NF-HQE-PROPERMEA











