

- Prix
- 165 600 €
Maison neuve • rue de l'Eglise (93)
- Nom et prix
- Projet de construction d'une maison 100 m² avec terrain à COUBRON (93) • 165 600 €
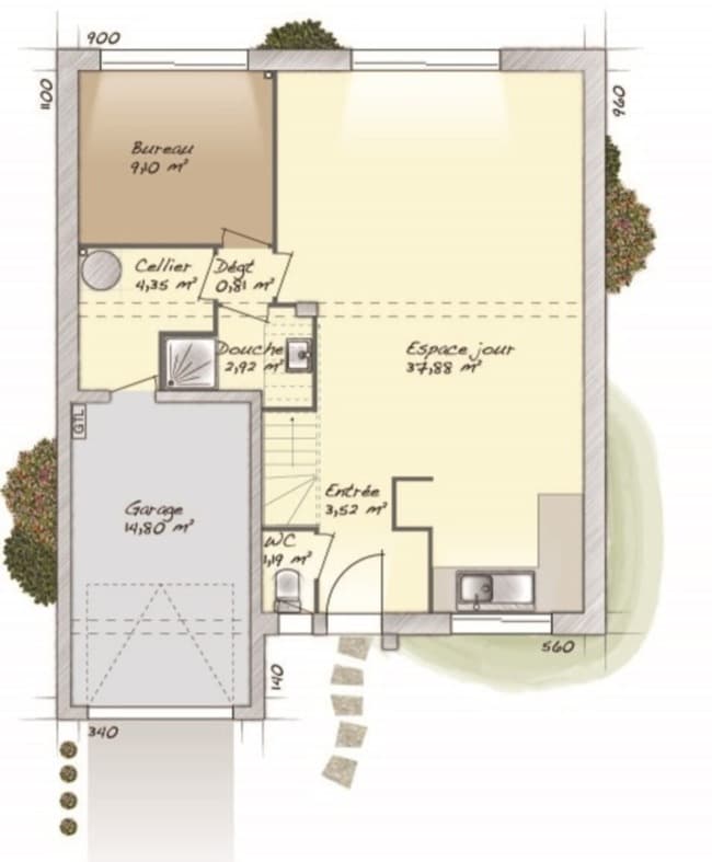
A COUBRON sur un terrain de 301 m², MAISONS SESAME vous propose de réaliser cette maison neuve d'une surface de 100 m² habitables avec 4 chambres. Rafaël des Maisons Sésame :06/62/37/09/82- Vous propose ce modèle totalement personnalisable de 100 m² habitable + garage. Composée d'une belle pièce de vie de plus de 30 m² ainsi qu'une cuisine de 8 m² au RDC. A l'étage, vous trouverez 4 chambres et une salle de bain. Cette maison fonctionnelle est idéale pour accueillir toute la famille. MAISONS SÉSAME vous propose les prestations suivantes : - Plans des maisons modulables et adaptables selon vos besoins et les spécificités de votre terrain - Large choix de systèmes de chauffage performants et économes en énergie - Sélection de matériaux de qualité garantissant confort et durabilité - Accompagnement sur-mesure pour la recherche et l’acquisition de votre terrain - Construction conforme à la réglementation en vigueur et à la norme RE2020 - Maisons certifiées NF HABITAT, gage de qualité, de performance et de confort Informations du terrain : Dans une impasse Proche des écoles Demandez une étude gratuite et personnalisée de votre projet de construction ! Étude gratuite de votre projet de construction ! De nombreux terrains disponibles dans votre secteur. Informations légales : Maisons Sésame, constructeur de maisons individuelles, propose une sélection de terrains en collaboration avec ses partenaires fonciers, sous réserve de disponibilité. Il n’agit pas en tant que mandataire pour la vente de ces terrains. Nos maisons, certifiées NF Habitat et conformes à la réglementation thermique en vigueur, vous garantissent un habitat durable et économe en énergie. Découvrez un large choix de modèles adaptés aux besoins de toute la famille. Informations tarifaires : Les prix indiqués sont donnés à titre indicatif et n’incluent pas les frais annexes (frais de notaire, raccordements, etc.). Les visuels et prix présentés sont non contractuels. Pour plus de détails, consultez nos conditions en agence. N° ORIAS IOBSP 13007108 – RCS Versailles 388 867 426. Les informations sur les risques auxquels ce bien est exposé sont disponibles sur le site Géorisques : www.georisques.gouv.fr Cette annonce a été créée et diffusée avec le logiciel VITAHOME. Contactez Rafaël MOREAU au 06 62 37 09 82 ou au 01 60 09 18 88 (Maisons Sésame - Agence de Mareuil les Meaux).







