

- Prix
- 343 000 €
Maison neuve • Saint-Soupplets (77)
- Nom et prix
- Terrain à bâtir Saint-Soupplets (77165) • 343 000 €
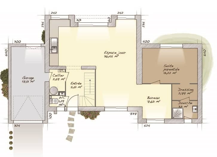
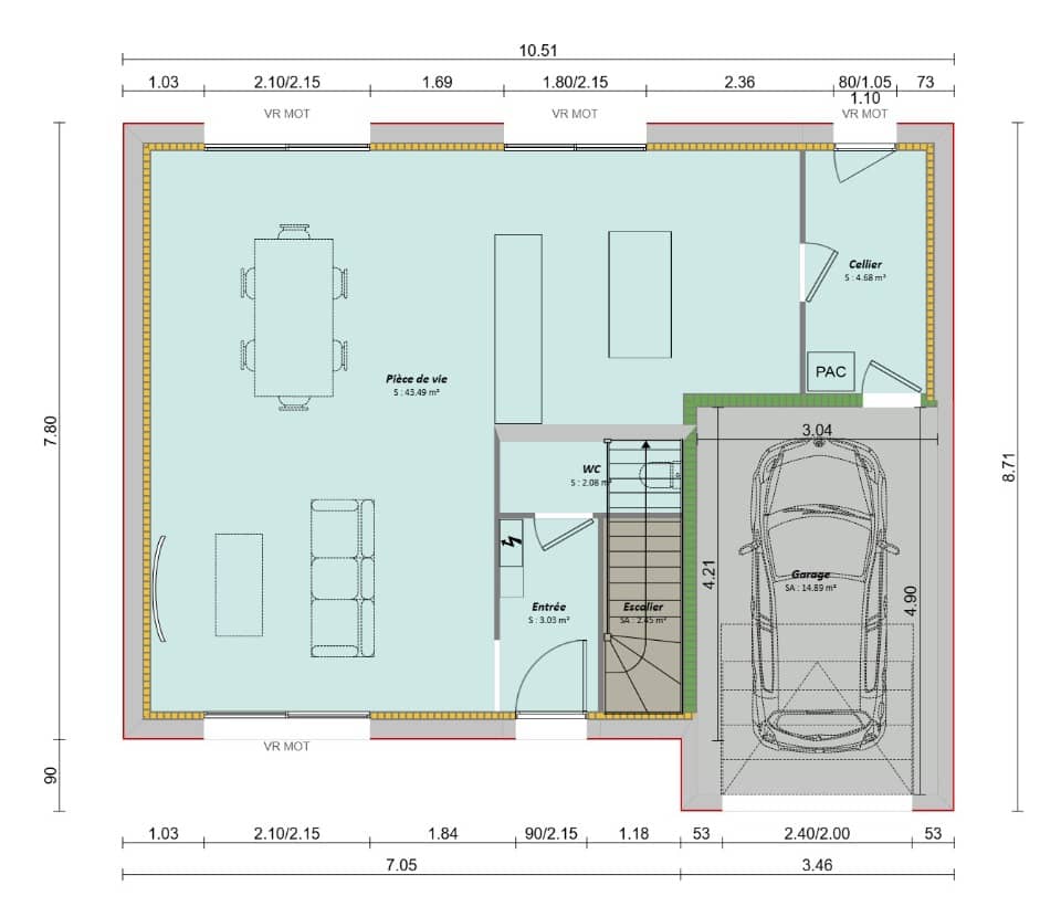
Réalisez votre projet de construction à seulement 3 minutes de Saint Soupplets avec Yoan, expert des Maisons Balency, membre du groupe HEXAOM, leader national de la maison individuelle ! 📍 Superbe terrain de 418 m², sans vis-à-vis 🌿 Un cadre calme et verdoyant, proche de toutes commodités Vous souhaitez simplement vous renseigner ou explorer vos possibilités ? Nos maisons sont entièrement personnalisables, avec plus de 100 modèles disponibles ! 📞 Contactez Yoan dès maintenant au O6 58 o9 8O 47 pour obtenir toutes les informations dont vous avez besoin. 🏡 Maison moderne et lumineuse, conçue pour allier confort et fonctionnalité. 🔹 Surface : 160 m² 🔹 5 chambres spacieuses 🔹 Grande pièce de vie ouverte avec cuisine américaine 🔹 Salle de bain équipée + WC séparé 🔹 Beaux volumes et luminosité optimisée grâce aux grandes ouvertures 🔹 Garage / cellier / suite parentale (selon configuration)











