

- Prix
- 345 000 €
Maison neuve • Vauréal (95)
- Nom et prix
- Terrain à bâtir () • 345 000 €
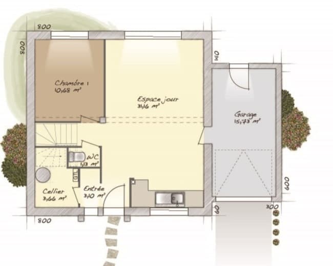
Maison T6 (98 m²) à vendre à Vauréal PROCHE DE PARIS - MAISON 6 PIÈCES NEUVE À vendre : à quelques minutes de la station Cergy le Haut (Paris à 40 min avec le RER A), à Vauréal (95490), venez découvrir cette maison de 6 pièces de 98 m² et de 275 m² de terrain. Cette maison possède 2 niveaux. Elle compte quatre chambres, une cuisine et une salle de bains. La maison est neuve. Des établissements scolaires du primaire et du secondaire sont implantés à moins de 10 minutes à pied, tout comme quatre crèches. Niveau transports, on trouve les lignes de RER A et C ainsi que 31 gares à moins de 10 minutes en voiture. Il y a une bibliothèque, un bassin de natation, deux tennis, des commerces, des boulangeries, deux supermarchés, un bureau de poste et des épiceries dans les environs. Son prix de vente est de 345 000 €. Prenez contact avec Denis DUCOS (tél : 06-80-06-50-40) pour toute information sur cette maison. Maisons Balency Moisselles est là pour vous accompagner dans toutes vos démarches.