

- Prix
- 261 239 €
Maison neuve • Saint Laurent De Brevedent (76)
- Nom et prix
- Votre Maison Familiale Idéale à Saint-Laurent-de-Brèvedent : Terrain Exclusif, Prix Exceptionnel ! • 261 239 €
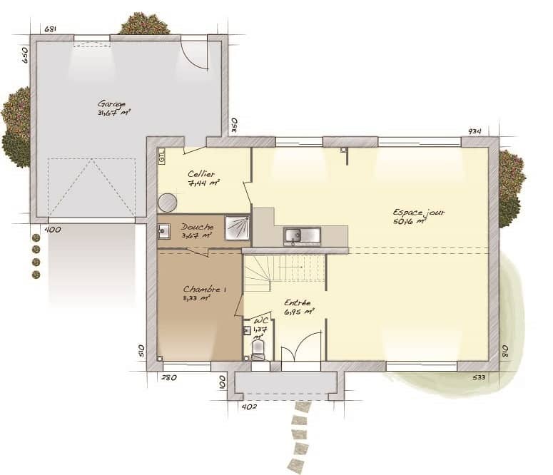
Découvrez dès maintenant cette opportunité unique : un terrain exclusif de 517m² à Saint-Laurent-de-Brèvedent à un prix remisé, spécialement pour vous par Maisons Le Masson Le Havre. Ce terrain, parfait pour concrétiser votre projet immobilier familial, est entièrement viabilisé et vous offre l'espace idéal pour une maison de 90m² (avec possibilité de garage). Implanté dans un quartier dynamique, cet emplacement privilégié bénéficie de la proximité immédiate d'une école primaire, offrant ainsi un environnement sécurisé et propice aux enfants. La mobilité est un atout majeur avec 10 gares accessibles en moins de 10 minutes en voiture ainsi que la facilité d'accès aux autoroutes A29, A131 et à la nationale N282, situées à moins de 7 km. Vous rêvez d'une maison à la fois spacieuse et confortable ? Ce projet de construction de 80m² habitables (90m² au sol) avec un garage de 20m² répond parfaitement à vos attentes. Conforme aux normes RE2020, cette maison Traditionnelle offre un espace de vie lumineux et fonctionnel ouvert sur un joli espace cuisine. A l'étage, 3 belles chambres pour une intimité préservée, ainsi qu'une salle de bains et un wc séparé. Dans la construction de votre maison, nous privilégions des matériaux haut de gamme, minutieusement sélectionnés pour garantir une excellence constante à chaque étape. Votre future demeure est couronnée d'un toit en ardoises, alliant élégance et durabilité pour une esthétique intemporelle. En accord avec notre engagement envers l'efficacité énergétique, nous avons intégré un système de chauffage par pompe à chaleur Atlantic. Ce choix technologique garantit une performance remarquable, offrant chaleur et économie d'énergie, tout en maîtrisant vos coûts mensuels. Pour votre tranquillité d'esprit, tout est inclus : adaptation au sol, branchement remblais, ouverture des compteurs eau et EDF, ainsi que toutes les garanties et assurances obligatoires. Le prix proposé englobe non seulement la maison et le terrain, mais également l'assurance \"dommage ouvrage\", les frais de notaire, et même l'implantation de la maison par le géomètre. Nous sommes là pour vous accompagner à chaque étape, de la personnalisation de votre maison à la recherche d'un financement adapté à vos besoins. Ce cadre exceptionnel est prêt à accueillir votre futur foyer. Ne manquez pas cette opportunité unique avec Maisons Le Masson Le Havre à Saint-Laurent-de-Brèvedent. Contactez-nous dès maintenant pour saisir cette offre exclusive sur ce terrain ! Chez nous, la qualité, le confort et la durabilité ne sont pas de simples engagements, mais la garantie que nous prenons pour vous offrir le meilleur dans la concrétisation de votre nouveau foyer. Chez Maisons Le Masson au Havre, nous sommes dédiés à réaliser vos rêves immobiliers. Contactez-nous dès aujourd'hui pour concrétiser ce projet. Nous proposons également d'autres modèles et localisations en Normandie pour votre résidence principale ou des investissements prometteurs. En tant que leader dans le Grand Ouest, nous vous assurons le meilleur rapport qualité/prix. Photos non-contractuelles











