

- Prix
- 580 000 €
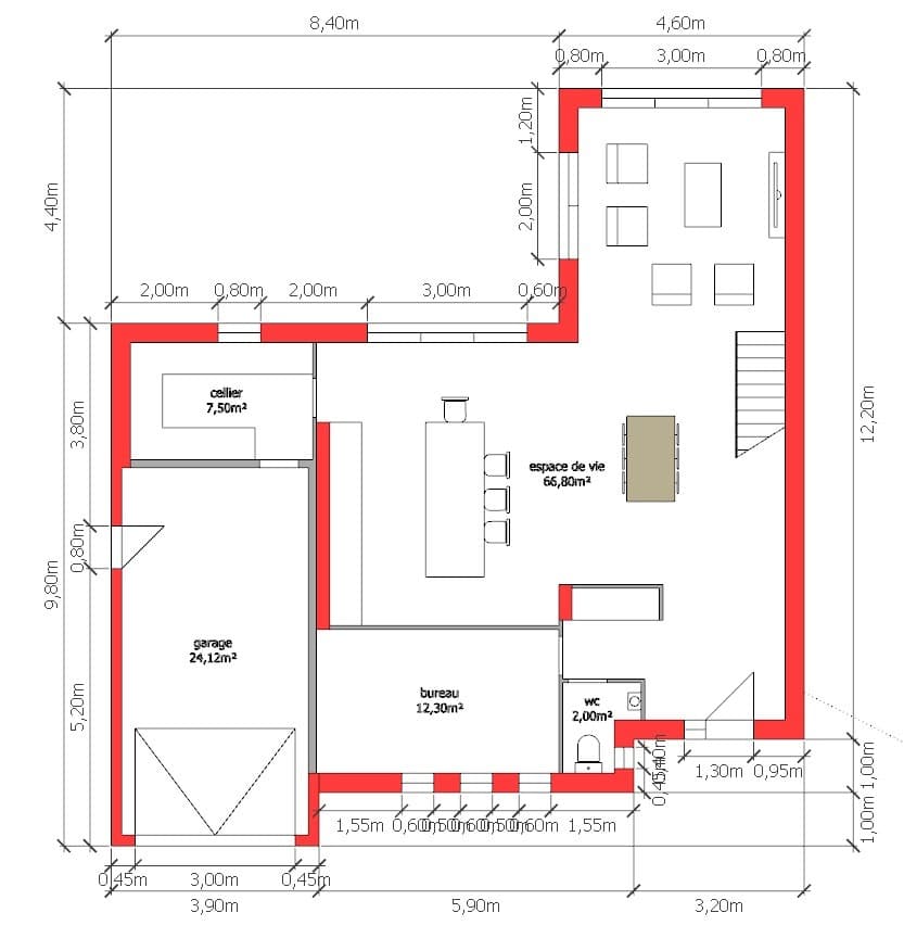
Maison neuve • Sonchamp (78)
- Nom et prix
- Terrain à bâtir () • 580 000 €
Dans un village de charme situé à 6 kilomètres de Rambouillet sur la commune de Sonchamp, venez découvrir cette maison familiale de 177m² habitable aux volumes généreux, implantée sur un beau terrain plat de 1 050m² exposé plein Ouest. Vous profiterez d'un bel espace de vie de plus de 60m², avec une cuisine ouverte donnant sur un cellier et garage. L'étage offre quatre belles chambres dont une suite parentale. Maison disposant des nouvelles réglementations RE 2020 et certifiée NF Habitat HQE. Renseignez-vous auprès de Fabien LAROYE au 06/61/52/02/68/