

- Prix
- 407 600 €
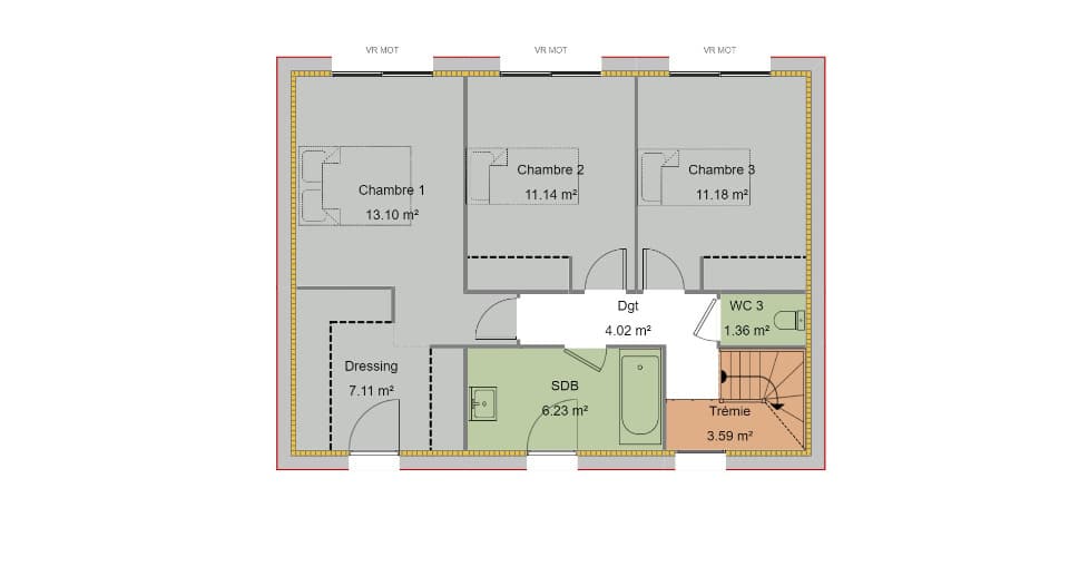
Maison neuve • Castelmaurou (31)
- Nom et prix
- Terrain à bâtir Castelmaurou (31180) • 407 600 €
Découvrez cette Bastide moderne de 130 m² : Élégance, confort et luminosité réunis ! Succombez au charme intemporel de cette bastide contemporaine, pensée pour répondre à toutes vos envies : Rez-de-chaussée spacieux et fonctionnel : Une suite parentale de 20 m², véritable cocon, comprenant : Dressing intégré Salle d'eau privative WC séparé Un espace jour généreux de 56 m², baigné de lumière grâce à de grandes baies vitrées en aluminium. Une cuisine ouverte moderne attenante à un cellier pour plus de rangements et un garage de 19 m². Vestiaire et WC séparé pour plus de confort. Étage dédié à la famille : 3 chambres lumineuses, dont une seconde suite parentale avec un grand dressing. 1 salle de bains élégante et un WC indépendant. Prestations haut de gamme incluses : - Pompe à chaleur air/air pour un confort thermique optimal - Enduit bi-ton finition grattée pour une façade raffinée - Porte de garage sectionnelle motorisée - Garde-corps vitrées pour une touche contemporaine Investissement Maison + terrain : 407 600€ (hors frais annexes) Avec Maisons France Confort, vous bénéficiez de : - Plus de 105 ans d'expertise dans la construction de maisons individuelles. - Un accompagnement clé en main : Recherche foncière Conception sur-mesure de vos plans Démarches administratives Solutions de financement grâce à nos partenaires de confiance. Contactez l'agence d'Aucamville au 05.34.43.84.38 et transformez votre rêve en réalité. Avec Maisons France Confort, bien construire votre futur.