

- Prix
- 288 000 €
Maison neuve • Witry-lès-Reims (51)
- Nom et prix
- Terrain à bâtir () • 288 000 €
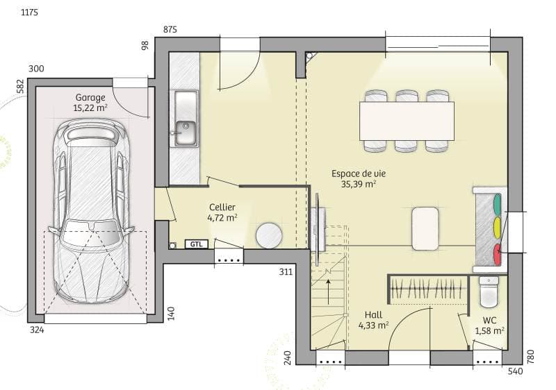
À Witry Les Reims, maison neuve (normes RE 2020) de 90m2 avec patio. Maison de construction traditionnelle (matériaux de qualité, ossature en brique) de 3 chambres (possibilité d'une quatrième). Le modèle présenté est le modèle Open Nord ETG L GA accès Sud 90 so chic d'une surface habitable de 90m2 et compte une pièce de vie ouverte sur la cuisine, une salle de bain, 3 chambres, avec espace pour les placards, deux wc, un cellier et un garage. Il est possible de personnaliser ces plans afin qu'ils répondent parfaitement à vos attentes. Terrain constructible de plus de 330m2 entièrement viabilisé à Witry Lès Reims parfaitement plat et idéalement situé au calme et proche de toutes les commodités. Environnement de qualité aux portes de Reims. Witry Lès Reims est une commune proche de Reims, Bétheny, Cernay Lès Reims, Nogent l'Abbesse, Fresnes Lès Reims, Bourgogne, Caurel, Pomacle et Lavannes. La commune est équipée en commerces et services en tout genre, d'une gare ainsi que d'une crèche, une école et un collège. Pour plus de renseignements vous pouvez me contacter , Nicolas GUILLAUME de l'agence Maisons France Confort de Cormontreuil au 07.77.79.23.59