

- Prix
- 1 095 000 €
Maison neuve • Chennevières-sur-Marne (94)
- Nom et prix
- Terrain à bâtir Chennevières-sur-Marne (94430) • 1 095 000 €
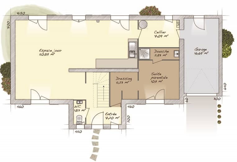
Maison de 6 pièces (190 m²) à vendre à Chennevières-sur-Marne MAISON 6 PIÈCES NEUVE - PROCHE DE PARIS À quelques minutes de la station La Varenne-Chennevières (Paris à 15 min par le RER A), en vente à Chennevières-sur-Marne (94430), nous vous présentons cette maison de 6 pièces de 190 m². Elle se divise en quatre chambres, une cuisine et deux salles de bains. Le terrain du bien est de 570 m². C'est une maison de 2 niveaux. Elle est neuve. Il y a tous les types d'établissements scolaires (maternelle, élémentaire et secondaire) à moins de 10 minutes à pied, tout comme trois crèches. Niveau transports, on trouve le RER A, E, D et C ainsi que 16 gares à moins de 10 minutes en voiture. Il y a une bibliothèque, un tennis, un bassin de natation, trois supermarchés, des commerces, des boulangeries, une boucherie-charcuterie et une supérette à quelques minutes à peine. Elle est proposée à l'achat pour 1 095 000 €. Prenez contact avec notre agence (THAREAU Franck : 01-48-81-08-79) pour toute information sur cette maison ou sur les démarches à suivre. Concrétisez vos projets immobiliers avec Maisons Berval Le Perreux-sur-Marne.











