

- Prix
- 202 202 €
Maison neuve • 6 rue du Sergent Hoff (94)
- Nom et prix
- Projet de construction d'une maison 148 m² avec terrain à LE PERREUX-SUR-MARNE (94) • 202 202 €
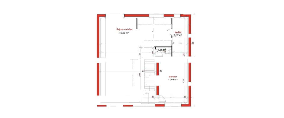
A LE PERREUX-SUR-MARNE sur un terrain de 488 m², MAISONS SESAME vous propose de réaliser cette maison neuve d'une surface de 148 m² habitables avec 5 chambres. Le modèle PYROPE 150 4 pans est une maison de 148 m² qui se distingue par son design élégant, marqué par un toit à quatre pans qui lui confère un style cossu et intemporel. Ce toit est complété par un fronton et un porche rentrant, lui conférant un style à la fois raffiné et accueillant. Au rez-de-chaussée, vous trouverez une chambre qui peut également être utilisée comme bureau pour télétravailler, un cellier pour optimiser le rangement, et une entrée spacieuse menant à un grand séjour lumineux. Ce niveau inclut aussi un WC séparé. À l’étage, les quatre chambres, dont une suite parentale avec sa propre salle de douche et un dressing privé, apportent confort et intimité. Une salle de bains à partager complète l’agencement. MAISONS SÉSAME vous propose les prestations suivantes : - Plans des maisons modulables et adaptables selon vos besoins et les spécificités de votre terrain - Large choix de systèmes de chauffage performants et économes en énergie - Sélection de matériaux de qualité garantissant confort et durabilité - Accompagnement sur-mesure pour la recherche et l’acquisition de votre terrain - Construction conforme à la réglementation en vigueur et à la norme RE2020 - Maisons certifiées NF HABITAT, gage de qualité, de performance et de confort Informations du terrain : Zone pavillonaire Calme Demandez une étude gratuite et personnalisée de votre projet de construction ! Étude gratuite de votre projet de construction ! De nombreux terrains disponibles dans votre secteur. Informations légales : Maisons Sésame, constructeur de maisons individuelles, propose une sélection de terrains en collaboration avec ses partenaires fonciers, sous réserve de disponibilité. Il n’agit pas en tant que mandataire pour la vente de ces terrains. Nos maisons, certifiées NF Habitat et conformes à la réglementation thermique en vigueur, vous garantissent un habitat durable et économe en énergie. Découvrez un large choix de modèles adaptés aux besoins de toute la famille. Informations tarifaires : Les prix indiqués sont donnés à titre indicatif et n’incluent pas les frais annexes (frais de notaire, raccordements, etc.). Les visuels et prix présentés sont non contractuels. Pour plus de détails, consultez nos conditions en agence. N° ORIAS IOBSP 13007108 – RCS Versailles 388 867 426. Les informations sur les risques auxquels ce bien est exposé sont disponibles sur le site Géorisques : www.georisques.gouv.fr Cette annonce a été créée et diffusée avec le logiciel VITAHOME. Contactez Mme FORTES SEMEDO au 06 35 53 11 16 (Maisons Sésame - Agence de le Perreux sur Marne).













