
Maison neuve • Parigné-l'Évêque (72)
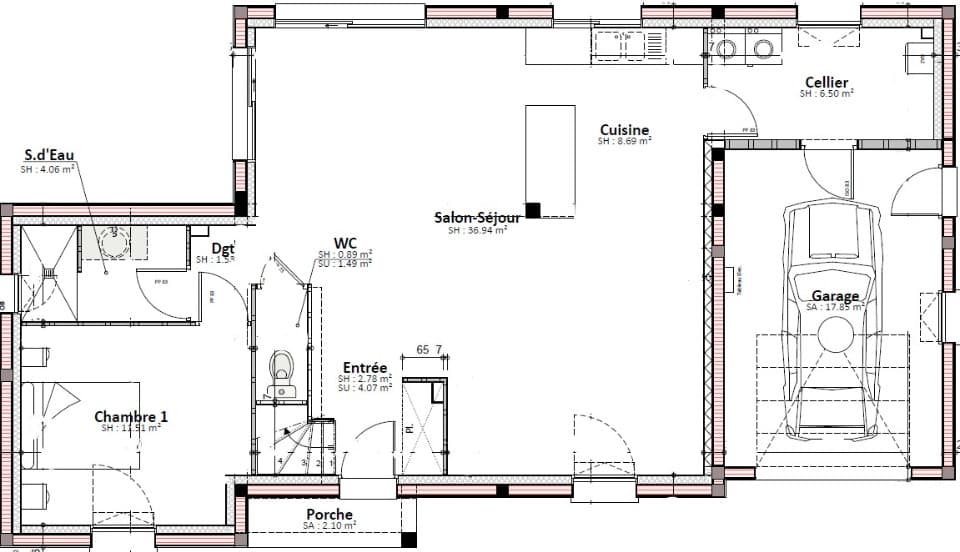
Maison T4 (76 m²) en vente à Parigné-l'Évêque IDÉALEMENT SITUÉE - MAISON 4 PIÈCES NEUVE À 14 km du Mans, venez découvrir en vente, idéalement située dans Parigné-l'Évêque (72250), cette maison de 4 pièces de plain-pied de 76 m². Conçue de plain-pied, elle propose trois chambres, une cuisine et une salle de bains. Le terrain du bien est de 303 m². Cette maison est neuve. Cette maison est située dans un secteur prisé. Quatre établissements scolaires sont implantés à moins de 10 minutes à pied, tout comme une crèche. Côté transports en commun, on trouve la gare Champagné à moins de 10 minutes en voiture. Il y a un accès à l'autoroute A28 à 4 km. Il y a une bibliothèque, un tennis, trois boulangeries, trois commerces, une boucherie-charcuterie, une supérette et un bureau de poste dans les environs. Elle est proposée à l'achat pour 222 000 €. N'hésitez pas à prendre contact avec notre agence (François HOUDAYER : 06-23-38-26-90) pour tout renseignement sur la maison, sur les démarches à suivre ou sur les modalités de vente. Faites de vos projets immobiliers une réalité avec Maine Construction Saint-Saturnin.
Proposé par MAINE CONSTRUCTION - LE MANS










