

- Prix
- 635 000 €
Maison neuve • Aulnay-sous-Bois (93)
- Nom et prix
- Terrain à bâtir () • 635 000 €
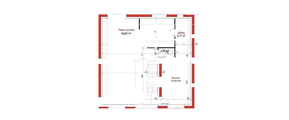
Maison de 6 pièces (152 m²) en vente à Aulnay-sous-Bois MAISON 6 PIÈCES NEUVE À vendre : au pied du RER B (15 min de Paris), Maisons Berval Le Perreux-sur-Marne vous propose à Aulnay-sous-Bois (93600), cette maison de 6 pièces de 152 m² et de 290 m² de terrain. Cette maison comporte 2 niveaux. Elle comporte quatre chambres, une cuisine et deux salles de bains. Cette maison est neuve. Tous les types d'établissements scolaires (maternelle, élémentaire et secondaire) sont implantés à moins de 10 minutes à pied, tout comme deux crèches. Côté transports en commun, il y a les lignes B, E, D et A du RER ainsi que 40 gares à moins de 10 minutes en voiture. On trouve une bibliothèque, deux tennis, un bassin de natation, deux supermarchés, des commerces, des boulangeries, des boucheries-charcuteries et des épiceries à quelques minutes à peine. Elle est à vendre pour la somme de 635 000 €. Prenez contact avec Franck THAREAU (01-48-81-08-79) pour tout renseignement sur cette maison.












