

- Prix
- 134 027 €
Maison neuve • OGNES (60)
- Nom et prix
- Projet de construction d'une maison 79 m² avec terrain à OGNES (60) • 134 027 €
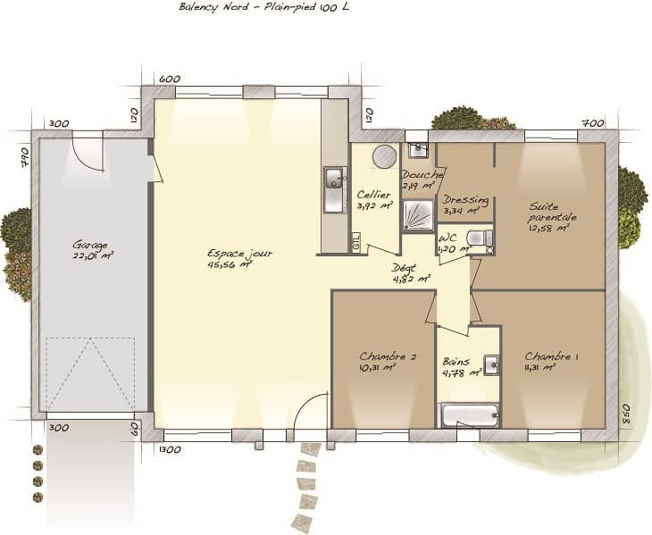
A OGNES sur un terrain de 450 m², MAISONS SESAME vous propose de réaliser cette maison neuve d'une surface de 79 m² habitables avec 3 chambres. La maison de plain-pied ALYA 80, avec une surface habitable de 79 m², est conçue pour offrir un cadre de vie confortable et fonctionnel. Son rez-de-chaussée de 79 m² est intelligemment agencé afin d’optimiser chaque espace et répondre aux besoins d’une famille. Ce modèle dispose de quatre pièces, dont trois chambres, permettant d’accueillir une famille avec enfants ou d’aménager un bureau selon les besoins. La pièce de vie, spacieuse et lumineuse, favorise un cadre convivial et agréable, idéal pour partager des moments en famille ou entre amis. Avec son design moderne et épuré, l’ALYA 80 offre une maison bien pensée et pratique, adaptée aussi bien aux primo-accédants qu’à ceux cherchant un logement fonctionnel et abordable. Son excellent rapport qualité-prix en fait une option attrayante pour ceux qui souhaitent devenir propriétaires tout en maîtrisant leur budget. MAISONS SÉSAME vous propose les prestations suivantes : - Plans des maisons modulables et adaptables selon vos besoins et les spécificités de votre terrain - Large choix de systèmes de chauffage performants et économes en énergie - Sélection de matériaux de qualité garantissant confort et durabilité - Accompagnement sur-mesure pour la recherche et l’acquisition de votre terrain - Construction conforme à la réglementation en vigueur et à la norme RE2020 - Maisons certifiées NF HABITAT, gage de qualité, de performance et de confort Informations du terrain : Axe N2, Ecoles, CDG 25 min Demandez une étude gratuite et personnalisée de votre projet de construction ! Étude gratuite de votre projet de construction ! De nombreux terrains disponibles dans votre secteur. Informations légales : Maisons Sésame, constructeur de maisons individuelles, propose une sélection de terrains en collaboration avec ses partenaires fonciers, sous réserve de disponibilité. Il n’agit pas en tant que mandataire pour la vente de ces terrains. Nos maisons, certifiées NF Habitat et conformes à la réglementation thermique en vigueur, vous garantissent un habitat durable et économe en énergie. Découvrez un large choix de modèles adaptés aux besoins de toute la famille. Informations tarifaires : Les prix indiqués sont donnés à titre indicatif et n’incluent pas les frais annexes (frais de notaire, raccordements, etc.). Les visuels et prix présentés sont non contractuels. Pour plus de détails, consultez nos conditions en agence. N° ORIAS IOBSP 13007108 – RCS Versailles 388 827 426. Cette annonce a été créée et diffusée avec le logiciel VITAHOME. Contactez Sylvain SPECQ au 07 67 51 78 14 ou au 01 82 77 00 43 (Maisons Sésame - Agence de Chelles).













