

- Prix
- 213 451 €
Maison neuve • Les Trois Lacs (27)
- Nom et prix
- Terrain à bâtir Les Trois Lacs (27940) • 213 451 €
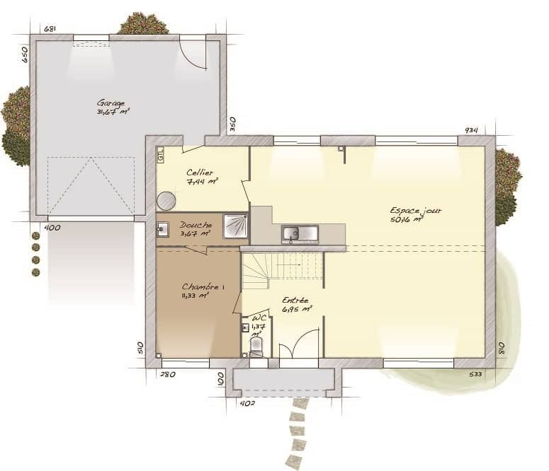
A construire : maison de 5 pièces (90 m²) aux Trois Lacs IDÉALEMENT SITUÉE - MAISON 5 PIÈCES NEUVE À vendre : située à deux pas de Rouen, idéalement située dans Les Trois Lacs (27940), Maisons Balency Boos vous présente cette maison de 5 pièces de plain-pied de 90 m². Conçue de plain-pied, elle se divise en trois chambres, une cuisine et une salle de bains. Le terrain de la propriété est de 1 000 m². Cette maison est neuve. La maison est située dans un secteur convoité. L'École Primaire Venables se trouve à moins de 10 minutes à pied. Côté transports, il y a trois gares (Gaillon-Aubevoye, Saint-Pierre-du-Vauvray et Val-de-Reuil) à moins de 10 minutes en voiture. Les autoroutes A13 et A154 sont accessibles à moins de 10 km. Elle est à vendre pour la somme de 213 451 €. Contactez Célia RENIER (tél : 07-62-90-87-77) pour obtenir de plus amples renseignements sur le bien.










