

- Prix
- 239 146 €
Maison neuve • La Ville-Dieu-du-Temple (82)
- Nom et prix
- Terrain à bâtir La Ville-Dieu-du-Temple (82290) • 239 146 €
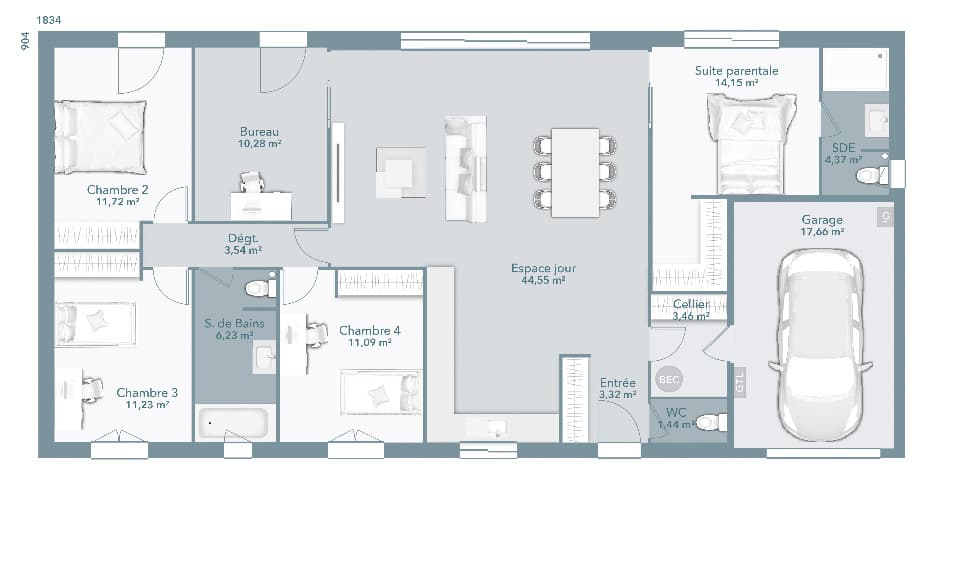
'Votre agence Maisons France Confort d'Aucamville vous propose ce beau projet maison + terrain à 8 min de la commune de Albefeuille Lagarde Avec Optima 125, vous optez pour une pièce de vie volumineuse, agréable et fonctionnelle et des espaces de nuit distincts pour les parents et les enfants. En effet, la pièce de vie est au centre de la maison, d'un côté on retrouve 3 chambres et un bureau pour les enfants et de l'autre, une suite parentale en option avec salle d'eau et dressing. Autre atout de la composition de cette maison, son garage avec son accès direct à la maison par le cellier ! La composition rêvée pour un plain-pied optimisé ! Prix : 239.146.€ HF Pour toutes informations, contactez l'agence MAISONS FRANCE CONFORT d'Aucamville au 05.34.43.84.38.'









