

- Prix
- 350 274 €
Maison neuve • Fontenay-en-Parisis (95)
- Nom et prix
- Terrain à bâtir () • 350 274 €
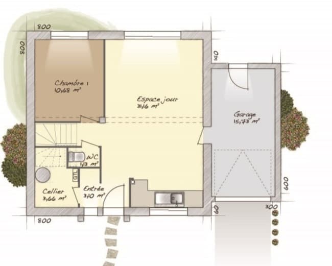
Maison F6 (98 m²) à vendre à Fontenay-en-Parisis MAISON 6 PIÈCES NEUVE - PROCHE DE PARIS Au pied de la station Les Noues du RER D (25 min de Paris), Maisons Balency Dammartin-en-Goële vous présente à vendre à Fontenay-en-Parisis (95190), cette maison de 6 pièces de 98 m². Cette maison compte 2 niveaux. Elle comporte quatre chambres, une cuisine et une salle de bains. Cette maison est neuve. Le terrain du bien est de 225 m². L'École Élémentaire les Hirondelles et l'École Maternelle Françoise Dolto sont implantées à moins de 10 minutes à pied. Côté transports en commun, il y a deux lignes de RER (D et B) ainsi que 20 gares à moins de 10 minutes en voiture. On trouve un tennis, une bibliothèque, une boulangerie et une épicerie à quelques minutes du logement. Il est à vendre pour la somme de 350 274 €. Contactez notre agence (Sébastien DARTEVELLE : 06-24-63-58-60) pour obtenir de plus amples renseignements sur la maison, sur les démarches à suivre ou sur les modalités de vente.












