

- Prix
- 257 574 €
Maison neuve • Saint-Sardos (82)
- Nom et prix
- Terrain à bâtir Saint-Sardos (82600) • 257 574 €
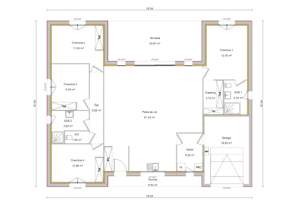
'Votre agence Maisons France Confort d'Aucamville vous propose ce beau projet d'une maison à construire aux dernières normes RE2020 ! Changez de logement pour évoluer vers une demeure complètement neuve avec une belle superficie. Le modèle de maison qui vous est présenté est Bastide 125+20. Architecture de style traditionnelle avec un toit à 2 ou 4 pans. Situé à Saint Sardos, vous pourrez vous rendre facilement à Montech qui n'est qu'à .10 minutes. Totalisant 145m2, l'espace intérieur est formé d'une cuisine de 11.29m2, une salle d'eau, un coin salon de 55.13m2 et 5 chambres, dont une au rez-de-chaussée. Un grand point positif pour une famille, le grand nombre de salles de bain préservera l'intimité des grands et des petits. Avec autant de chambres, vous pouvez être sûr que toutes trouveront leur utilité. À l'extérieur, vous disposerez d'un jardin. La maison à construire donne accès à au moins un garage pour garantir la sécurité de votre voiture. Il se peut que ce projet de construction de logement vous fasse bénéficier d'un crédit immobilier à zéro pour cent d'intérêts. Contactez-nous dès aujourd'hui ! Prix maison + terrain (hors frais divers) : 257.574.€.HF Prenez rendez-vous et bénéficiez d'une étude entièrement personnalisé. Pour toutes informations, contactez l'agence MAISONS FRANCE CONFORT d'Aucamville au 05.34.43.84.38.'










