

- Prix
- 318 623 €
Maison neuve • Lizy-sur-Ourcq (77)
- Nom et prix
- Terrain à bâtir () • 318 623 €
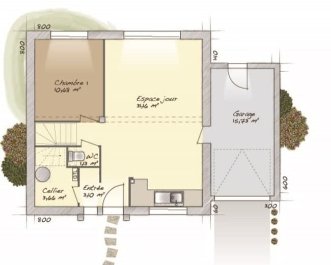
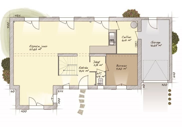
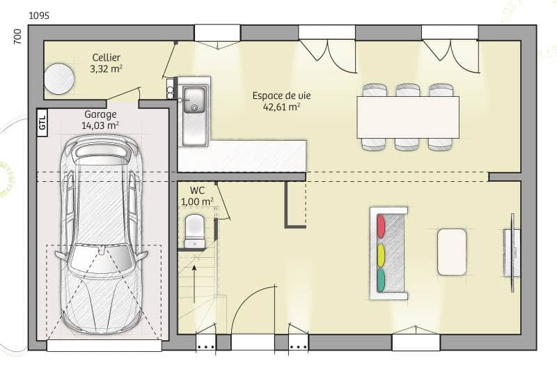
VENTE d'une maison de 6 pièces (98 m²) à Lizy-sur-Ourcq MAISON 6 PIÈCES NEUVE - PROCHE DE MEAUX Proche de la gare (Paris à 45 min par le Transilien P), à vendre à Lizy-sur-Ourcq (77440), nous sommes ravis de vous proposer cette maison de 6 pièces de 98 m². Son intérieur se divise en quatre chambres, une cuisine et une salle de bains. Le terrain du bien s'étend sur 700 m². C'est une maison de 2 niveaux. Elle est neuve. L'École Élémentaire Monet-Dès, l'École Primaire Privée Saint-Albert, l'École Maternelle Bellevue et le Collège Camille Saint-Saens sont implantés à moins de 10 minutes à pied. Côté transports, il y a la gare Lizy-sur-Ourcq juste à côté. On trouve un tennis, un bassin de natation, deux supermarchés, des commerces, deux boulangeries, un bureau de poste et une épicerie dans les environs. Ne manquez pas le marché Place du marché chaque vendredi matin. Elle est à vendre pour la somme de 318 623 €. Prenez contact avec notre agence (Sébastien DARTEVELLE : 06-24-63-58-60) pour tout renseignement sur le bien. Maisons Balency Dammartin-en-Goële vous accompagne dans toutes vos démarches et dans tous vos projets immobiliers.








